Contact met de makelaar

Deze woning is gevonden buiten ons eigen netwerk. Met de knop hieronder kom je direct bij de aanbieder terecht.

Nieuw

Fabriekstraat

Bekijk kaart
4611 HH Bergen op Zoom (Havenkwartier)
€ 699.000 k.k.
  • 185 m²
  • 5 kamers
  • 2019

Samenvatting

  • Deze woning wordt sinds 2 december 2025 aangeboden door Baas Makelaars;
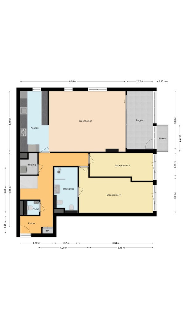
  • De galerijflat heeft een woonoppervlakte van 185 m² en beschikt over 5 kamers, waarvan 4 slaapkamers;
  • De woning is gebouwd In 2019 en ligt in de buurt Havenkwartier in Bergen op Zoom.

Beschrijving

Overdracht

Vraagprijs
€ 699.000 k.k.
Aangeboden sinds
02-12-2025
Status
Beschikbaar
Beschikbaar
In overleg

Oppervlakte en inhoud

Woonoppervlakte
185 m²

Bouw

Type woning
Appartement
Soort woning
Galerijflat
Soort bouw
Bestaande bouw
Bouwjaar
2019

Indeling

Aantal kamers
5
Aantal slaapkamers
4
Aantal badkamers
2

Buitenruimte

Dakterras
Niet aanwezig
Meld een probleem met deze woning