Contact met de makelaar

Deze woning is gevonden buiten ons eigen netwerk. Met de knop hieronder kom je direct bij de aanbieder terecht.

Nieuw

Mirbachstraat 10

Bekijk kaart
6367 CW Voerendaal (Voerendaal)
Prijs op aanvraag
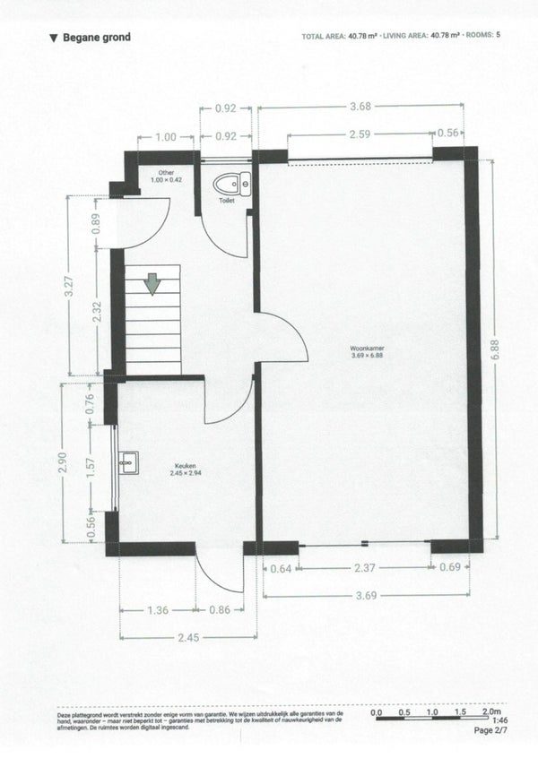
  • 84 m²
  • 5 kamers
  • 1963

Samenvatting

  • Deze woning wordt sinds 12 november 2025 aangeboden door Habets & Straten;
  • De tussenwoning heeft een woonoppervlakte van 84 m² en beschikt over 5 kamers, waarvan 3 slaapkamers;
  • De woning is gebouwd In 1963 en ligt in de buurt Voerendaal in Voerendaal.

Beschrijving

Overdracht

Vraagprijs
Prijs op aanvraag
Aangeboden sinds
12-11-2025
Status
Beschikbaar
Beschikbaar
In overleg
Onderhoudsstaat
Goed

Oppervlakte en inhoud

Woonoppervlakte
84 m²
Perceeloppervlakte
242 m²
Inhoud
300 m³

Bouw

Type woning
Huis
Soort woning
Tussenwoning (rijtjeshuis), Eengezinswoning
Soort bouw
Bestaande bouw
Bouwjaar
1963
Ligging
  • Aan een rustige weg
  • In het centrum
  • In een woonwijk

Indeling

Aantal kamers
5
Aantal slaapkamers
3
Aantal badkamers
1
Voorzieningen
  • Terras
  • Toilet

Buitenruimte

Balkon
Niet aanwezig
Tuin
Aanwezig (gelegen op het zuiden)
Dakterras
Niet aanwezig

Energie

Energielabel
F

Parkeergelegenheid

Aanwezig
Ja

Garage

Aanwezig
Nee
Meld een probleem met deze woning
Contact met de makelaar Bel