Woning verhuren

Contact met de makelaar

Deze woning is gevonden buiten ons eigen netwerk. Met de knop hieronder kom je direct bij de aanbieder terecht.

Onder bod

Te huur: Appartement Kerkstraat 410 1 in Amsterdam

Bekijk kaart
1017 JC (Grachtengordel-Zuid)
€ 2.600 per maand
  • 52 m²
  • 2 kamers
  • Gemeubileerd

Beschrijving

REAGEREN VIA BEZICHTIGINGSKNOP, AANVRAGEN PER TELEFOON WORDEN LATER BEHANDELD

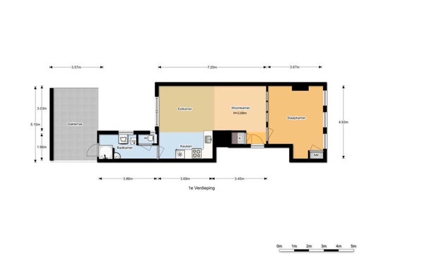
Heerlijk licht 1 hoog appartement met zonnig dakterras in een van de mooiste straatjes in de luwte van het centrum van Amsterdam, nabij de Amstel.
Het energiezuinige (Label-A!) appartement bevindt zich in een prachtig goed onderhouden karakteristiek pand en heeft een ruime woonkamer met open keuken en 1 royale slaapkamer.

Al het leuks dat het centrum van Amsterdam te bieden heeft is op slechts enkele loop minuten van het huis vandaan. Vanzelfsprekend zijn er ruim voldoende openbaar vervoer mogelijkheden binnen handbereik.

Het appartement is gemeubileerd en is direct te betrekken. De huur is exclusief gas, water, licht en internet. Geen huisdieren, studenten of woningdelers toegestaan.

Het huis wordt voor minimaal 1 jaar verhuurd middels de diplomatenclausule. Na het eerste jaar wordt er steeds met een jaar verlengd. Het appartement is direct beschikbaar.

Overdracht

Huurprijs
€ 2.600 per maand
  • Inclusief: Servicekosten
Prijs per m²
€ 50
Aangeboden sinds
14-01-2026
Status
Onder bod
Beschikbaar
In overleg
Borg
€ 5.700
Interieur
Gemeubileerd
Onderhoudsstaat
Zeer goed

Oppervlakte en inhoud

Woonoppervlakte
52 m²
Inhoud
185 m³

Bouw

Type woning
Appartement
Soort woning
Bovenwoning, Appartement
Soort bouw
Bestaande bouw
Bouwjaar
1749

Indeling

Aantal kamers
2
Aantal slaapkamers
1
Aantal badkamers
1
Aantal woonlagen
1
Verdieping
2
Voorzieningen
Internetaansluiting

Buitenruimte

Balkon
Niet aanwezig
Tuin
Aanwezig (18 m², gelegen op het zuiden)
Tuinbeschrijving
zonneterras
Achterom
Niet aanwezig
Dakterras
Niet aanwezig

Energie

Isolatie
Dubbele beglazing, Muurisolatie
Verwarming
CV-ketel
Warm water
CV-ketel
Energielabel
A

Parkeergelegenheid

Aanwezig
Ja
Soort parkeergelegenheid
Vergunning
Meld een probleem met deze woning