Woning verhuren

Contact met de makelaar

Deze woning is gevonden buiten ons eigen netwerk. Met de knop hieronder kom je direct bij de aanbieder terecht.

Nieuw

Te huur: Appartement Nederhoven in Amsterdam

Bekijk kaart
1083 AN (Buitenveldert-Oost)
€ 4.250 per maand
  • 180 m²
  • 7 kamers
  • Gestoffeerd

Exclusief voor jou

Deze woning is voor jou beschikbaar via je persoonlijke notificatie en verschijnt niet in de zoekresultaten.

Beschrijving

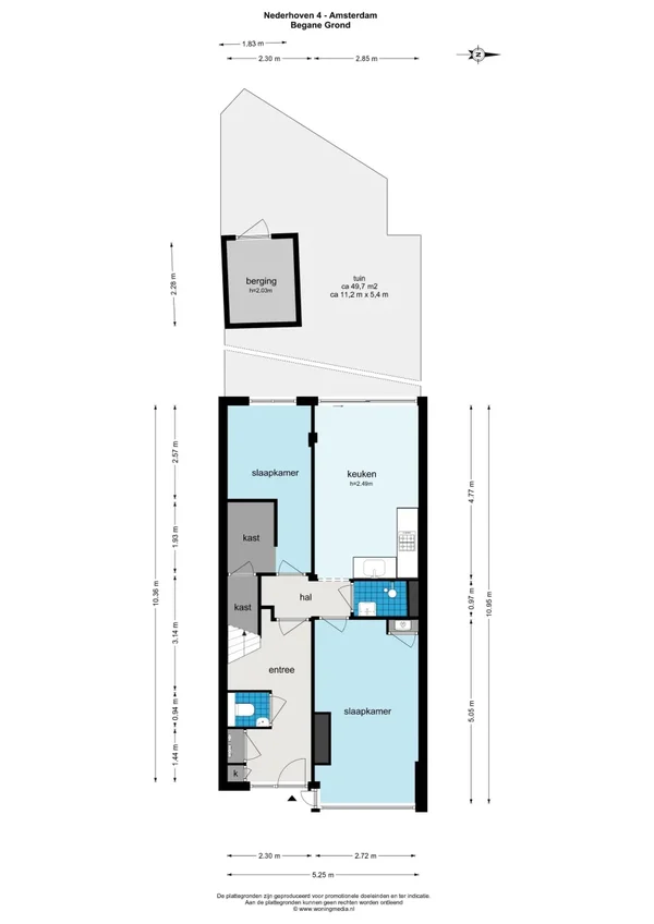
Dit ruime, gestoffeerde familiehuis in Buitenveldert beschikt over 5 slaapkamers, 2 keukens en 2 badkamers. Gelegen in een rustige straat, dichtbij het Gelderlandplein en openbaar vervoer, is het ideaal voor grote gezinnen. De indeling omvat een hal met een separaat toilet en toegang tot een praktijkruimte, een slaapkamer en een woonkeuken met alle benodigdheden. Vanuit de woonkeuken kom je in de zonnige tuin van 60 m2, die uitkijkt op een speelveldje. Op de eerste verdieping vind je een riante woonkamer met een nieuwe keuken, en op de bovenste etage zijn drie slaapkamers en een tweede badkamer aanwezig, met een luxueuze master bedroom met ligbad en airco. De woning is volledig gerenoveerd met een visgraatvloer en vloerverwarming. Het biedt parkeermogelijkheden en een dorpse sfeer met scholen en sportfaciliteiten in de buurt. Beschikbaar vanaf 01-12-2025 voor een eerlijke huurprijs van € 4.750 per maand.

Overdracht

Huurprijs
€ 4.250 per maand
Aangeboden sinds
04-12-2025
Status
Te huur
Beschikbaar
Per direct
Interieur
Gestoffeerd

Oppervlakte en inhoud

Woonoppervlakte
180 m²

Bouw

Type woning
Appartement
Soort woning
Galerijflat
Soort bouw
Bestaande bouw

Indeling

Aantal kamers
7
Aantal slaapkamers
5
Aantal badkamers
2

Buitenruimte

Dakterras
Niet aanwezig

Huurvoorwaarden

Doelgroep
Werkende
Meld een probleem met deze woning