Woning verhuren

Contact met de makelaar

Deze woning is gevonden buiten ons eigen netwerk. Met de knop hieronder kom je direct bij de aanbieder terecht.

Nieuw

Te huur: Appartement Bulgerstein in Amsterdam

Bekijk kaart
1082 NJ (Buitenveldert-Oost)
€ 1.807 per maand
  • 87 m²
  • 3 kamers
  • 1985

Exclusief voor jou

Deze woning is voor jou beschikbaar via je persoonlijke notificatie en verschijnt niet in de zoekresultaten.

Beschrijving

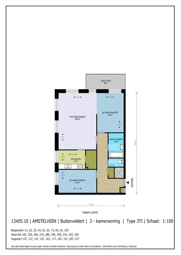
Dit appartement in Buitenveldert, met een oppervlakte van 87 m², biedt een ideale balans tussen stadsleven en rust. Met 2 slaapkamers is het perfect voor wie ruimte zoekt. De lichte woonkamer van ongeveer 29 m² vormt het hart van het huis en geeft toegang tot een balkon, perfect voor ochtendkoffie of een frisse avondbries. De open keuken is uitgerust met moderne apparatuur zoals een inductiekookplaat en een koel-vriescombinatie. De moderne badkamer beschikt over een ligbad en een inloopdouche, terwijl het toilet apart is. Daarnaast is er een inpandige berging met aansluitingen voor een wasmachine en droger. Gelegen nabij het Gelderlandplein en het Amsterdamse Bos, biedt het appartement alle nodige voorzieningen en uitstekende verbindingen met het openbaar vervoer.

Overdracht

Huurprijs
€ 1.807 per maand
Aangeboden sinds
11-12-2025
Status
Te huur
Beschikbaar
Per 01-01-2026

Oppervlakte en inhoud

Woonoppervlakte
87 m²

Bouw

Type woning
Appartement
Soort woning
Galerijflat
Soort bouw
Bestaande bouw
Bouwjaar
1985

Indeling

Aantal kamers
3
Aantal slaapkamers
2
Aantal badkamers
1

Buitenruimte

Dakterras
Niet aanwezig

Energie

Energielabel
B

Huurvoorwaarden

Doelgroep
Werkende
Meld een probleem met deze woning