Woning verhuren

Contact met de makelaar

Deze woning is gevonden buiten ons eigen netwerk. Met de knop hieronder kom je direct bij de aanbieder terecht.

Te huur: Appartement Grasweg in Amsterdam

Bekijk kaart
1031 HX (Noordelijke IJ-oevers-West)
€ 2.600 per maand
  • 80 m²
  • 3 kamers
  • Gestoffeerd

Beschrijving

Prachtig gemeubileerd appartement met 2 slaapkamers (gebouwd in 2025 met A+++ label)!

Dit appartement heeft prachtige parketvloeren en vloerverwarming. Het beschikt over vloer tot plafond ramen en een balkon met uitzicht op het IJ, Silodam en Pontsteiger. Het ligt direct naast de distelweg-pontsteiger veerboot.

Dit nieuw gebouwde appartement bevindt zich op de 6e verdieping van een nieuw gebouw en heeft een westelijke oriëntatie, wat zorgt voor een prachtig uitzicht op zonsondergangen en grandioos uitzicht op het IJ en het scheepvaartverkeer. De moderne ventilatiesystemen en vloerverwarming zorgen voor een zeer aangename woonomgeving met een zeer efficiënt A+++ label, slechts 1 niveau onder volledig zelfvoorzienend.

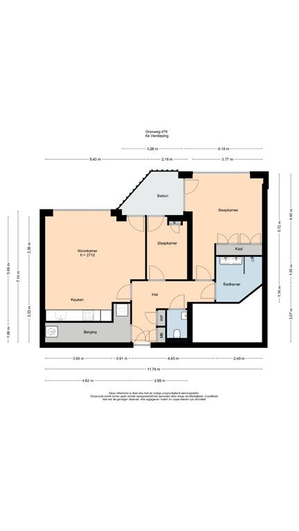
Men komt het appartement binnen via een kleine gang die verbinding maakt met alle kamers. Er is een bergruimte, een aparte toiletruimte, een badkamer, 2 slaapkamers en een woonkamer met open keuken.

De bergruimte kan worden gebruikt als wasruimte (het heeft aansluitingen) evenals voorraadkast, of zelfs beide. Er is een aparte extra opslagruimte in de kelder van het gebouw evenals een grote gemeenschappelijke fietsenstalling.

De woonkamer heeft enorme vloer tot plafond ramen die geweldig uitzicht bieden, je kunt vanaf hier het balkon bereiken evenals vanuit beide slaapkamers. Hier is een moderne open keuken met alle gewenste voorzieningen voor het moderne leven.

De twee slaapkamers hebben ook hetzelfde uitzicht en balkon toegang, een is bedoeld als hoofdslaapkamer, de andere is beter te gebruiken als kantoor/gastenverblijf. De hoofdslaapkamer heeft op maat gemaakte inbouwkasten.

Het appartement is uitgerust met een ruime moderne badkamer met inloopdouche, dubbele wastafel, vloerverwarming en handdoekverwarmer.

Geïnteresseerd?

Als je een bezichtiging wilt, stuur dan een korte introductie inclusief:

  • Gewenste startdatum
  • Huurduur
  • Beschikbaarheid voor bezichtiging
  • Bron van inkomen / werkdetails
  • Verwachte verblijfsduur in Amsterdam
  • Huishouddetails (wie hier zal wonen)

De huurprijs omvat servicekosten evenals kosten met betrekking tot bekleding/stoffering, maar niet nutsvoorzieningen (water, energie, internet, belastingen, heffingen).

De inkomenseis is drie keer de huur en garantstellers worden niet geaccepteerd.

Overdracht

Huurprijs
€ 2.600 per maand
  • Inclusief: Servicekosten
Aangeboden sinds
15-01-2026
Status
Te huur
Beschikbaar
In overleg
Borg
€ 5.450
Interieur
Gestoffeerd
Onderhoudsstaat
Zeer goed

Oppervlakte en inhoud

Woonoppervlakte
80 m²
Inhoud
215 m³

Bouw

Type woning
Appartement
Soort woning
Galerijflat, Appartement
Soort bouw
Bestaande bouw
Bouwjaar
2025
Ligging
  • Aan een rustige weg
  • Aan vaarwater
  • Aan het water
  • Nabij het openbaar vervoer
  • Vrij uitzicht

Indeling

Aantal kamers
3
Aantal slaapkamers
2
Aantal badkamers
1
Aantal woonlagen
1
Verdieping
6
Voorzieningen
  • Douche
  • Bergruimte
  • Toilet

Buitenruimte

Balkon
Aanwezig
Dakterras
Niet aanwezig

Energie

Isolatie
Dubbele beglazing, Vloerisolatie, Volledig geïsoleerd, Dakisolatie, Muurisolatie
Verwarming
Stadsverwarming, Volledige vloerverwarming
Warm water
Stadsverwarming
Energielabel
A+++

Bergruimte

Schuur/Berging
Aanwezig
Meld een probleem met deze woning