Te huur: Appartement Bronckhorststraat 18 3 in Amsterdam
Bekijk kaart- 69 m²
- 3 kamers
- Gestoffeerd
Beschrijving
Stijlvol wonen in hartje Oud-Zuid, volledig gerenoveerd en instapklaar!
Dit prachtig nieuw gebouwde (2024) appartement (gestoffeerd) met twee ruime slaapkamers, een zonnig zonneterras en tevens dakterras met een energielabel A biedt de perfecte balans tussen klassiek karakter en modern wooncomfort. Met een plafondhoogte van bijna 3 meter en grote raampartijen geniet u van een zee aan natuurlijk licht en een ruimtelijk gevoel.
De afwerking is tot in detail verzorgd: een visgraatvloer met bies en vloerverwarming, moderne inbouwspots en strak gestuukte wanden geven het appartement een luxueuze uitstraling.
Indeling
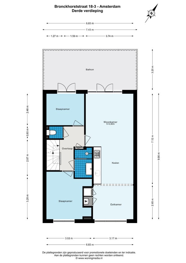
Via het gerenoveerde trappenhuis bereikt u de entree op de tweede verdieping. Entree geeft toegang naar de trap naar de derde verdieping met overloop, separaat toilet en badkamer. De stijlvolle woonkamer beschikt over inbouwkasten en staat in directe verbinding met de moderne keuken en hoogwaardige inbouwapparatuur, een droom voor iedere kookliefhebber.
Aan de achterzijde openen dubbele deuren naar het zonneterras van 22 vierkante meter, een heerlijke plek om te ontspannen met de ondergaande zon. Het appartement beschikt over twee ruime slaapkamers, waarvan één eveneens toegang heeft tot het balkon. De luxe badkamer is voorzien van een inloopdouche en een dubbele wastafel met meubel. De woon/eetkamer en grote slaapkamer is voorzien van airconditioning.
OMGEVING
Rustig wonen in stijlvol Oud-Zuid, met de highlights van Amsterdam op loopafstand.
Deze charmante straat bevindt zich in een van de meest prestigieuze buurten van de stad. Binnen enkele minuten loopt u naar het Museumplein met het Rijksmuseum, Van Gogh Museum en Stedelijk Museum, of geniet u van een concert in het beroemde Concertgebouw. Ook het Vondelpark en de chique winkelstraat P.C. Hooftstraat zijn vlakbij.
Voor de dagelijkse boodschappen zijn er diverse supermarkten en speciaalzaken om de hoek, terwijl Oud-Zuid bekendstaat om zijn uitstekende restaurants, gezellige cafés en internationale keukens. Hierdoor combineert deze locatie het beste van een rustige woonomgeving met de levendige Amsterdamse lifestyle.
De bereikbaarheid is uitstekend: tram- en busverbindingen liggen op loopafstand, de Zuidas en Schiphol zijn snel bereikbaar, en met de fiets staat u binnen 10 minuten in het historische centrum.
HUURCONDITIES
- huur is excl. gas, water, elektra, tv/internet en gemeentelijke heffingen voor het gebruik van de woning;
- Incl. Wasmachine en droger AEG.
- 2 maanden kale huur waarborgsom;
- onbepaalde tijd met minimum van 1 jaar;
- gestoffeerd, zonder meubels.
Overdracht
- Huurprijs
-
€ 3.250 per maand
- Aangeboden sinds
- 17-01-2026
- Status
- Te huur
- Beschikbaar
- Per direct
- Bijzonderheden
- Beschermd stads- of dorpsgezicht
- Interieur
- Gestoffeerd
- Onderhoudsstaat
- Zeer goed
Oppervlakte en inhoud
- Woonoppervlakte
- 69 m²
- Inhoud
- 252 m³
Bouw
- Type woning
- Appartement
- Soort woning
- Bovenwoning, Appartement
- Soort bouw
- Bestaande bouw
- Bouwjaar
- 1920
Indeling
- Aantal kamers
- 3
- Aantal slaapkamers
- 2
- Aantal badkamers
- 1
- Aantal woonlagen
- 1
- Verdieping
- 3
- Voorzieningen
-
- Mechanische ventilatie
- Dakterras
- Douche
- Toilet
- Wasruimte
Buitenruimte
- Balkon
- Aanwezig
- Tuin
- Aanwezig (22 m², gelegen op het westen)
- Tuinbeschrijving
- zonneterras
- Achterom
- Niet aanwezig
- Dakterras
- Aanwezig
Energie
- Isolatie
- Volledig geïsoleerd
- Verwarming
- CV-ketel, Volledige vloerverwarming
- Warm water
- CV-ketel
- Energielabel
- A
Parkeergelegenheid
- Aanwezig
- Ja
- Soort parkeergelegenheid
- Openbaar
Garage
- Aanwezig
- Nee