Te huur: Appartement Pluvierstraat in Amsterdam
Bekijk kaart- 109 m²
- 5 kamers
- 1921
Exclusief voor jou
Deze woning is voor jou beschikbaar via je persoonlijke notificatie en verschijnt niet in de zoekresultaten.
Beschrijving
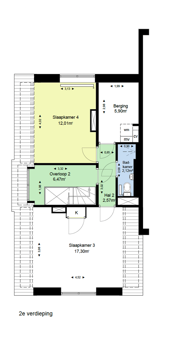
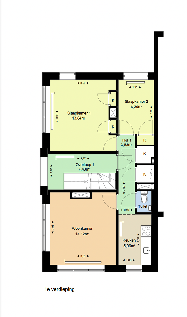
Dit charmante appartement van ongeveer 109 m² beschikt over vijf kamers en heeft een eigen entree vanaf de begane grond. Gelegen in het pittoreske Vogeldorp, geniet je van veelzijdige voorzieningen op loopafstand, zoals de metro Noord/Zuidlijn die je in één halte naar Centraal Station brengt. Voor boodschappen zijn de Jumbo Foodmarkt en Dirk van den Broek binnen 5 minuten te voet bereikbaar. Sportievelingen kunnen tennissen of hardlopen in de nabijgelegen natuur. Het appartement heeft op de eerste verdieping een woonkamer, een dichte keuken en twee slaapkamers. Op de tweede verdieping bevinden zich een slaapkamer, de badkamer en een inpandige berging. Huur is exclusief gas, water en licht, met een minimum van een jaar verhuur.
Overdracht
- Huurprijs
-
€ 2.050 per maand
- Aangeboden sinds
- 04-12-2025
- Status
- Te huur
- Beschikbaar
- Per direct
Oppervlakte en inhoud
- Woonoppervlakte
- 109 m²
Bouw
- Type woning
- Appartement
- Soort woning
- Galerijflat
- Soort bouw
- Bestaande bouw
- Bouwjaar
- 1921
Indeling
- Aantal kamers
- 5
- Aantal slaapkamers
- 3
- Aantal badkamers
- 2
Buitenruimte
- Dakterras
- Niet aanwezig
Energie
- Energielabel
- A
Huurvoorwaarden
- Doelgroep
- Werkende