- 74 m²
- 3 kamers
- Kaal
Beschrijving
Wonen in het hart van Bodegraven, met alles binnen handbereik? Dat kan!
In het moderne complex Residence Rijnhof bieden we per eind december 2025 dit volledig gemeubileerde (of in overleg alleen gestoffeerd) 3-kamerappartement aan. Gelegen op de eerste verdieping, voorzien van een eigen parkeerplaats én berging – comfortabel wonen wordt hier wel heel gemakkelijk.
Zodra je de deur uitstapt, sta je midden in het gezellige centrum. De supermarkt voor de dagelijkse boodschappen ligt om de hoek, en voor een lekker etentje of een borrel is er volop keuze aan leuke horecagelegenheden. Even ontsnappen aan de drukte? De Reeuwijkse- en Nieuwkoopse Plassen zijn vlakbij, perfect voor een mooie fiets- of wandeltocht. Ook de ligging vlak bij de N11 en A12 is ideaal: je rijdt zo richting Leiden, Utrecht of Gouda. En parkeren? Dat doe je gewoon op je eigen plek in de ondergelegen parkeerkelder. Zo hoef je nooit te zoeken naar een plekje, wel zo fijn na een lange werkdag.
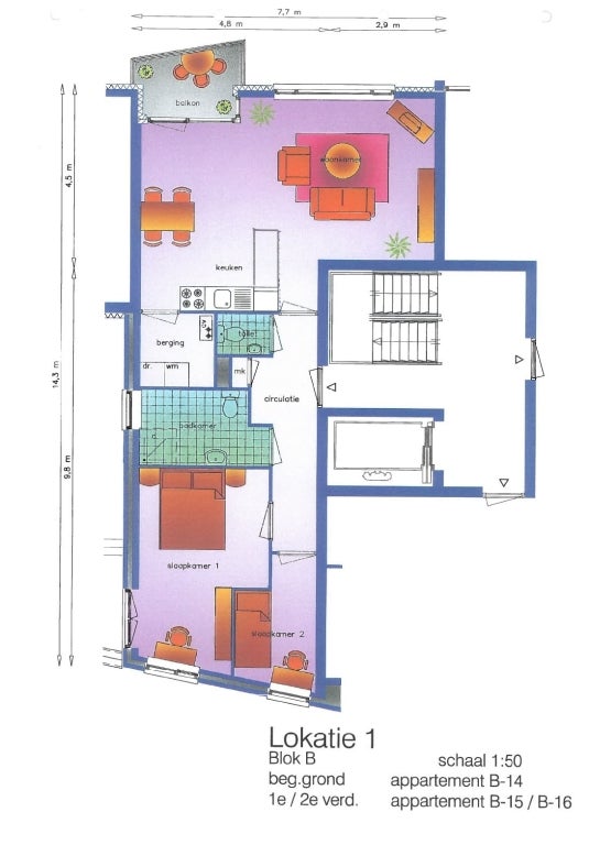
Laten we naar binnen gaan! De entree is ruim en hier vind je de meterkast, het toilet met fonteintje en de toegang tot beide slaapkamers. Maar eerst nemen we je mee naar de lichte woonkamer aan de voorzijde. Door de grote ramen en de fijne lichtinval voelt dit direct prettig aan. De moderne open keuken in stijlvolle antracietgrijze tinten is van alle gemakken voorzien: een vaatwasser, combi-oven/magnetron, koelkast, afzuigkap en inductiekookplaat. Aansluitend vind je een praktische berging met opbergrekken, een wasmachine, vriezer en ruimte voor een droger. Vanuit de woonkamer stap je zo het zonnige balkon op het zuiden op, een heerlijke plek om tot laat in de avond van de zon te genieten met een kop koffie of een goed glas wijn. De badkamer is modern uitgevoerd met een inloopdouche, wastafelmeubel en een tweede toilet. Aan de achterzijde ligt de ruime, lichte hoofdslaapkamer met een grote kastenwand. De tweede kamer is ideaal als kantoor, logeerkamer of hobbyruimte, net wat jij nodig hebt.
"Een knus appartement, ideaal voor één persoon of een stel, in een residentie waar de gemiddelde leeftijd zorgt voor een rustige en gezellige sfeer".
Bijzonderheden:
Eind december 2025 of per 2 januari 2026
Huurprijs € 1.750,00
Huurperiode onbepaalde tijd, minimaal 12 maanden
Waarborgsom € 3000,00
Huurprijs exclusief gas/water/licht/internet/tv en gemeentelijke heffingen
Servicekosten € 45,00 per maand
Gestoffeerd/gemeubileerd beide is bespreekbaar
Woonoppervlak 74 m2
Video intercom voor openen centrale deur
Eigen berging én parkeerplaats
Lift aanwezig
Op korte afstand van het NS station
Roken niet toegestaan
Geen huisdieren
Geen woningdelers
******
Overdracht
- Huurprijs
-
€ 1.750 per maand
- Aangeboden sinds
- 30-10-2025
- Status
- Te huur
- Beschikbaar
- Per 02-01-2026
- Interieur
- Kaal
- Onderhoudsstaat
- Goed
Oppervlakte en inhoud
- Woonoppervlakte
- 74 m²
- Inhoud
- 230 m³
Bouw
- Type woning
- Appartement
- Soort woning
- Bovenwoning, Appartement
- Soort bouw
- Bestaande bouw
- Bouwjaar
- 2007
Indeling
- Aantal kamers
- 3
- Aantal slaapkamers
- 2
- Aantal badkamers
- 1
- Voorzieningen
- Lift
Buitenruimte
- Balkon
- Aanwezig
- Tuin
- Niet aanwezig
- Dakterras
- Niet aanwezig
Energie
- Isolatie
- Vloerisolatie, HR glas, Muurisolatie
- Energielabel
- B
Garage
- Aanwezig
- Ja