Te huur: Appartement Maria Stuartplein in Den Haag
Bekijk kaart- 61 m²
- 2 kamers
- 2022
Exclusief voor jou
Deze woning is voor jou beschikbaar via je persoonlijke notificatie en verschijnt niet in de zoekresultaten.
Beschrijving
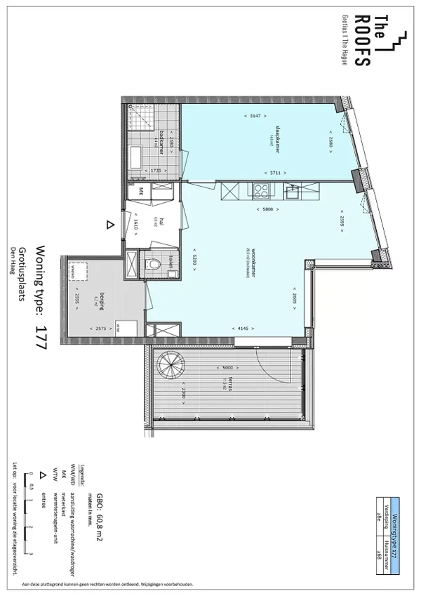
Stadswonen in een mooi afgewerkt tweekamerappartement van ongeveer 61 m² op de 28e verdieping in het centrum van Den Haag. Dit appartement is ideaal voor twee personen. Voor de kookliefhebbers is de leefkeuken compleet uitgerust met een inductiekookplaat, afzuigkap, combimagnetron, vaatwasser en koel-vriescombinatie. De badkamer is net afgewerkt, inclusief een wastafel en een ruime douche. Daarnaast is er een separaat toilet. Bekijk de plattegrond om de buitenruimte van het appartement te zien. Verdere informatie over inkomensnormen en borg vind je op de website. Huurprijzen kunnen jaarlijks wijzigen volgens geldende regelgeving. Inschrijven voor meer huurwoningen is kosteloos en vrijblijvend.
Overdracht
- Huurprijs
-
€ 1.410 per maand
- Aangeboden sinds
- 08-12-2025
- Status
- Te huur
- Beschikbaar
- Per 01-01-2026
Oppervlakte en inhoud
- Woonoppervlakte
- 61 m²
Bouw
- Type woning
- Appartement
- Soort woning
- Galerijflat
- Soort bouw
- Nieuwbouw
- Bouwjaar
- 2022
Indeling
- Aantal kamers
- 2
- Aantal slaapkamers
- 1
- Aantal badkamers
- 1
Buitenruimte
- Dakterras
- Niet aanwezig
Energie
- Energielabel
- A++
Huurvoorwaarden
- Doelgroep
- Werkende