Woning verhuren

Contact met de makelaar

Deze woning is gevonden buiten ons eigen netwerk. Met de knop hieronder kom je direct bij de aanbieder terecht.

Nieuw

Te huur: Appartement Ir Kalffstraat in Eindhoven

Bekijk kaart
5617 BH (Strijp S)
€ 1.430 per maand
  • 81 m²
  • 3 kamers
  • 2021

Exclusief voor jou

Deze woning is voor jou beschikbaar via je persoonlijke notificatie en verschijnt niet in de zoekresultaten.

Beschrijving

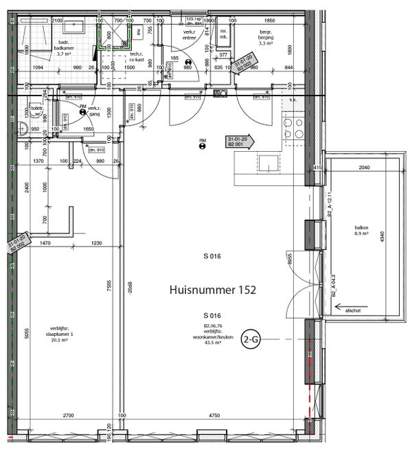
Beschikbaar per 1 januari 2026 is dit 3-kamer appartement van circa 81 m2. Het appartement beschikt over 3 kamers, waaronder 2 slaapkamers. De huurprijs bedraagt € 1.430,- per maand, met bijkomende servicekosten van € 60,-. Een waarborgsom van € 1.430,- is vereist. Geïnteresseerden kunnen het appartement bezichtigen na inschrijving bij 'REBO Huurwoning'. Let op, de inschrijving dient volledig te zijn, inclusief de nodige inkomensdocumenten. De toewijzing van het appartement gebeurt op volgorde van inschrijving. De huurovereenkomst geldt voor 12 maanden en wordt daarna stilzwijgend verlengd voor onbepaalde tijd. Ondernemers moeten 2 maanden huur als waarborgsom aanleveren. Vrije vestiging is toegestaan.

Overdracht

Huurprijs
€ 1.430 per maand
Aangeboden sinds
04-12-2025
Status
Te huur
Beschikbaar
Per direct

Oppervlakte en inhoud

Woonoppervlakte
81 m²

Bouw

Type woning
Appartement
Soort woning
Galerijflat
Soort bouw
Bestaande bouw
Bouwjaar
2021

Indeling

Aantal kamers
3
Aantal slaapkamers
2

Buitenruimte

Dakterras
Niet aanwezig

Energie

Energielabel
A+

Huurvoorwaarden

Doelgroep
Werkende
Meld een probleem met deze woning