Woning verhuren

Contact met de makelaar

Deze woning is gevonden buiten ons eigen netwerk. Met de knop hieronder kom je direct bij de aanbieder terecht.

Te huur: Appartement Patershof in Enkhuizen

Bekijk kaart
1601 AD (Centrum Zuid-Oost)
€ 1.065 per maand
  • 67 m²
  • 2 kamers

Beschrijving

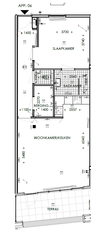
In Enkhuizen, aan de Patershof 2d, staat een modern 2-kamer appartement uit 2018 te huur. Dit appartement bevindt zich op de eerste verdieping, bereikbaar met de lift, en heeft een royaal terras van circa 12 m². Gelegen nabij winkels, de haven en andere voorzieningen van de binnenstad. De indeling omvat een ruime hal, een slaapkamer, een badkamer met inloopdouche en wastafel, een separaat toilet, en een bergruimte met cv-installatie en wasmachineopstelling. De woonkamer is ruim en geeft toegang tot het dakterras, en de open keuken is uitgerust met een L-vormige unit met inbouwapparatuur. Het appartement is keurig afgewerkt met spuitwerk wanden en heeft een plafondhoogte van circa 3 meter. De huurprijs bedraagt € 1.065,- per maand. Roken en huisdieren zijn niet toegestaan, en schilderen is ook niet toegestaan.

Overdracht

Huurprijs
€ 1.065 per maand
Aangeboden sinds
18-11-2025
Status
Te huur
Beschikbaar
Per direct

Oppervlakte en inhoud

Woonoppervlakte
67 m²

Bouw

Type woning
Appartement
Soort woning
Galerijflat
Soort bouw
Bestaande bouw

Indeling

Aantal kamers
2
Aantal slaapkamers
1
Aantal badkamers
1

Buitenruimte

Dakterras
Niet aanwezig

Huurvoorwaarden

Doelgroep
Werkende
Meld een probleem met deze woning