Niet beschikbaar

De woning die je wilt bekijken is niet langer beschikbaar. Je bekijkt nu het woningaanbod in dezelfde stad.

Woning verhuren

Contact met de aanbieder

Deze woning is gevonden buiten ons eigen netwerk. Via de knop hieronder ga je direct naar de website van de aanbieder.

Te huur: Appartement Verlengde Frederikstraat in Groningen

Bekijk kaart
9724 NC (Oosterpoort)
€ 1.995 per maand
  • 80 m²
  • 3 kamers
  • 1899

Beschrijving

Gerenoveerd tweeslaapkamerappartement in de Oosterpoortbuurt!

Per direct komt er een compleet gerenoveerd appartement te huur met twee slaapkamers aan het Fredriksplein in Groningen.

Locatie:
Dit appartement is gelegen in de gezellige Oosterpoortbuurt in Groningen, een levendige wijk met diverse winkels, horecagelegenheden en voorzieningen in de directe omgeving. Voor de dagelijkse boodschappen bevindt zich een Plus-supermarkt op korte afstand van de woning. Bovendien ligt het stadscentrum op slechts enkele minuten fietsen, waardoor alle faciliteiten binnen handbereik zijn.

Indeling en voorzieningen:
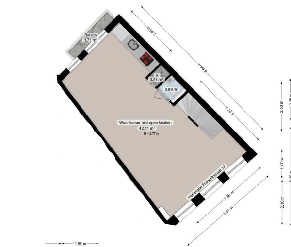
Het appartement heeft twee slaapkamers en beschikt over een A+++ label. Je komt bij binnenkomst direct in de lichte woonkamer met open keuken, die is voorzien van een inductiekookplaat, vaatwasser, koelkast, combi-oven en magnetron. Vanuit de woonkamer is het balkon toegankelijk. De badkamer beschikt over een douche, wastafel en toilet. Tot slot is er een ruime, gedeelde achtertuin die wordt gebruikt door de zeven appartementen van het complex.

Huurprijs en borg:
De huurprijs bedraagt € 1.995,- per maand, exclusief een voorschot voor servicekosten. De woning wordt exclusief verhuurd. Dit betekent dat huurders zelf zorgdragen voor het afsluiten en betalen van de servicekosten voor gas, water, elektra, internet etc. De waarborgsom bedraagt één maand huur.

Beschikbaarheid en huurperiode:
Het appartement is per direct beschikbaar. De huur wordt aangegaan voor onbepaalde tijd.

Interesse:
Reacties kunnen uitsluitend via onze website worden ingediend door te klikken op ‘Reageer op dit object’. Telefonische reacties kunnen wij helaas niet in behandeling nemen. De volgorde van binnengekomen reacties bepaalt welke kandidaten worden uitgenodigd voor de eerste selectie. Vanwege het grote aantal aanvragen kunnen wij niet op iedereen reageren. Wij nodigen doorgaans circa 5 kandidaten uit voor een bezichtiging. We kunnen helaas niet iedereen persoonlijk beantwoorden of uitnodigen.

Overdracht

Huurprijs
€ 1.995 per maand
Prijs per m²
€ 25
Aangeboden sinds
12-02-2026
Status
Te huur
Beschikbaar
In overleg
Borg
€ 1.995
Onderhoudsstaat
Zeer goed

Oppervlakte en inhoud

Woonoppervlakte
80 m²
Inhoud
160 m³

Bouw

Type woning
Appartement
Soort woning
Bovenwoning, Appartement
Soort bouw
Bestaande bouw
Bouwjaar
1899

Indeling

Aantal kamers
3
Aantal slaapkamers
2
Aantal badkamers
1
Aantal woonlagen
1
Voorzieningen
Toilet

Buitenruimte

Balkon
Aanwezig
Dakterras
Niet aanwezig

Energie

Energielabel
A+++
Meld een probleem met deze woning