Woning verhuren

Contact met de makelaar

Deze woning is gevonden buiten ons eigen netwerk. Met de knop hieronder kom je direct bij de aanbieder terecht.

Nieuw

Te huur: Appartement Beukenlaan in Zundert

Bekijk kaart
4881 KD (Zundert)
€ 1.280 per maand
  • 100 m²
  • 3 kamers
  • 2007

Exclusief voor jou

Deze woning is voor jou beschikbaar via je persoonlijke notificatie en verschijnt niet in de zoekresultaten.

Beschrijving

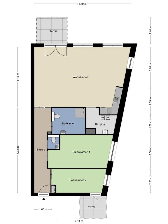
In het hart van Zundert ligt dit riante 3-kamer appartement in het complex 'De Drie Beuken'. Dit appartement op de eerste verdieping beschikt over twee slaapkamers en een ruime badkamer met douche, wastafel en toilet. De open keuken is van alle gemakken voorzien, waaronder een vaatwasser en een 4-pits inductiekookplaat. Vanuit de woonkamer zijn er tuin deuren naar het balkon, dat aan zowel de straatzijde als de achterzijde aanwezig is. Op het afgesloten terrein is een eigen parkeerplaats. Het complex heeft een lift en is vlakbij dagelijkse voorzieningen zoals supermarkten, cafés en scholen. De huurprijs bedraagt € 1.280,- per maand plus € 70,- servicekosten. Huisdieren zijn niet toegestaan en de huurperiode is tijdelijk, maximaal 1 tot 2 jaar.

Overdracht

Huurprijs
€ 1.280 per maand
Aangeboden sinds
04-12-2025
Status
Te huur
Beschikbaar
Per direct

Oppervlakte en inhoud

Woonoppervlakte
100 m²

Bouw

Type woning
Appartement
Soort woning
Galerijflat
Soort bouw
Bestaande bouw
Bouwjaar
2007

Indeling

Aantal kamers
3
Aantal slaapkamers
2
Aantal badkamers
1

Buitenruimte

Dakterras
Niet aanwezig

Energie

Energielabel
A

Huurvoorwaarden

Doelgroep
Werkende
Meld een probleem met deze woning