Contact met de makelaar

Deze woning is gevonden buiten ons eigen netwerk. Met de knop hieronder kom je direct bij de aanbieder terecht.

Nieuw

Denemarkenstraat 164

Bekijk kaart
1363 DD Almere (Europakwartier W.-Noord)
€ 330.000 k.k.
  • 49 m²
  • 2 kamers
  • 2017

Samenvatting

  • Deze woning wordt sinds 27 januari 2026 aangeboden door Semeijn Makelaardij B.V.;
  • De galerijflat heeft een woonoppervlakte van 49 m² en beschikt over 2 kamers, waarvan 1 slaapkamer;
  • De woning is gebouwd In 2017 en ligt in de buurt Europakwartier W.-Noord in Almere.

Beschrijving

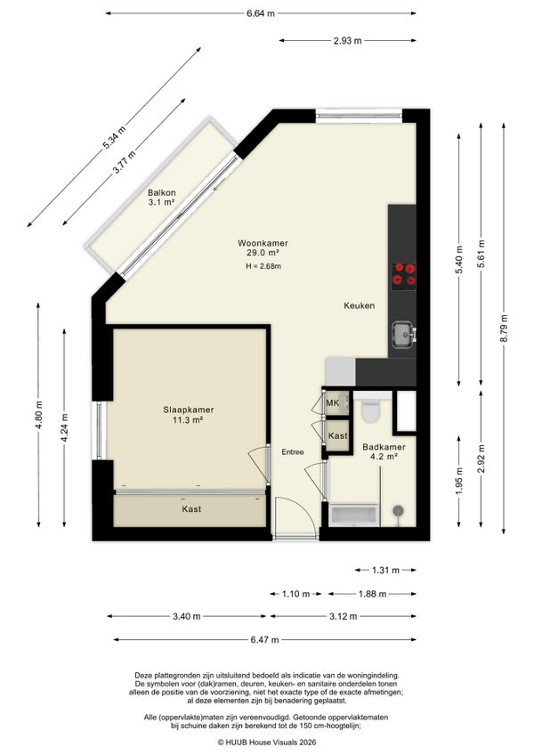
In Almere Poort ligt een modern appartement op Denemarkenstraat 164. Dit appartement heeft één slaapkamer, een balkon, en een moderne keuken en badkamer. Door de hoekligging en grote raampartijen is er veel natuurlijk licht. Het appartement is geheel uitgerust met vloerverwarming, wat zorgt voor extra comfort.

Het appartement bevindt zich op korte loopafstand van het strand, de duinen, het NS-station, winkels, en sportvoorzieningen. De ruime woonkamer biedt toegang tot het balkon met uitzicht op de straat en het water. De open keuken is voorzien van moderne apparatuur. De slaapkamer beschikt over een brede schuifkastenwand. De badkamer heeft een inloopdouche, toilet en wastafel.

Met een woonoppervlakte van 49 m² biedt het appartement een aangename leefruimte. Energielabel A zorgt voor goede isolatie en energiezuinigheid.

Overdracht

Vraagprijs
€ 330.000 k.k.
Aangeboden sinds
27-01-2026
Status
Beschikbaar
Beschikbaar
Per direct

Oppervlakte en inhoud

Woonoppervlakte
49 m²

Bouw

Type woning
Appartement
Soort woning
Galerijflat
Soort bouw
Bestaande bouw
Bouwjaar
2017

Indeling

Aantal kamers
2
Aantal slaapkamers
1
Aantal badkamers
1

Buitenruimte

Dakterras
Niet aanwezig

Energie

Energielabel
A
Meld een probleem met deze woning