Contact met de makelaar

Deze woning is gevonden buiten ons eigen netwerk. Met de knop hieronder kom je direct bij de aanbieder terecht.

Nieuw

Trojestraat 1 c

Bekijk kaart
1363 VL Almere (Homeruskwartier Midden)
€ 749.000 k.k.
  • 171 m²
  • 7 kamers
  • 2019

Samenvatting

  • Deze woning wordt sinds 10 februari 2026 aangeboden door Makelaar1;
  • De galerijflat heeft een woonoppervlakte van 171 m² en beschikt over 7 kamers, waarvan 5 slaapkamers;
  • De woning is gebouwd In 2019 en ligt in de buurt Homeruskwartier Midden in Almere.

Beschrijving

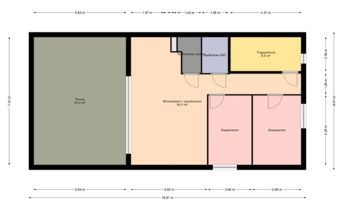
Trojestraat 1C in Almere Poort Centrum biedt een royaal dubbel appartement van 171 m² met vijf slaapkamers en twee ruime woonkamers, elk voorzien van een open keuken. De woning heeft een groot zonnig terras, eigen parkeerplaats en een externe berging. Het appartement is ideaal als meergezinswoning, met twee zelfstandige leefruimtes en privé-ingangen, wat perfect is voor families of investeringen. Gelegen in een toplocatie met recreatieve mogelijkheden zoals Homeruspark en Cascadepark, en nabij diverse voorzieningen zoals een supermarkt en NS-station. Gebouwd tussen 2019 en 2021, met een energielabel A++. Vloerverwarming, twee badkamers, en een aparte garage maken het compleet.

Overdracht

Vraagprijs
€ 749.000 k.k.
Prijs per m²
€ 4.380
Aangeboden sinds
10-02-2026
Status
Beschikbaar
Beschikbaar
Per direct

Oppervlakte en inhoud

Woonoppervlakte
171 m²

Bouw

Type woning
Appartement
Soort woning
Galerijflat
Soort bouw
Bestaande bouw
Bouwjaar
2019

Indeling

Aantal kamers
7
Aantal slaapkamers
5
Aantal badkamers
2

Buitenruimte

Dakterras
Niet aanwezig

Energie

Energielabel
A++
Meld een probleem met deze woning