Contact met de makelaar

Deze woning is gevonden buiten ons eigen netwerk. Met de knop hieronder kom je direct bij de aanbieder terecht.

Nieuw

Makassarhof 66

Bekijk kaart
1335 HV Almere (Indische Buurt West)
€ 285.000 k.k.
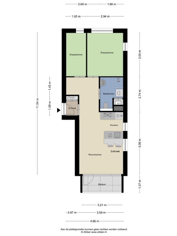
  • 48 m²
  • 3 kamers
  • 2016

Samenvatting

  • Deze woning wordt sinds 7 oktober 2025 aangeboden door bij Bosch Makelaars;
  • De bovenwoning heeft een woonoppervlakte van 48 m² en beschikt over 3 kamers, waarvan 2 slaapkamers;
  • De woning is gebouwd In 2016 en ligt in de buurt Indische Buurt West in Almere;
  • De woning beschikt onder andere over de volgende voorzieningen: Kabel TV, Mechanische ventilatie, Douche.

Beschrijving

Overdracht

Vraagprijs
€ 285.000 k.k.
Aangeboden sinds
07-10-2025
Status
Beschikbaar
Beschikbaar
In overleg
Onderhoudsstaat
Zeer goed

Oppervlakte en inhoud

Woonoppervlakte
48 m²
Perceeloppervlakte
2.214 m²
Inhoud
158 m³

VvE informatie

Inschrijving KvK
Ja
Jaarlijkse vergadering
Ja
Periodieke bijdrage
Ja (€ 141 per maand)
Reservefonds aanwezig
Ja
Opstalverzekering
Ja

Bouw

Type woning
Appartement
Soort woning
Bovenwoning, Appartement
Soort bouw
Bestaande bouw
Bouwjaar
2016

Indeling

Aantal kamers
3
Aantal slaapkamers
2
Aantal woonlagen
1
Voorzieningen
  • Kabel TV
  • Mechanische ventilatie
  • Douche

Buitenruimte

Balkon
Aanwezig
Dakterras
Niet aanwezig

Energie

Isolatie
Volledig geïsoleerd
Verwarming
CV-ketel
Warm water
CV-ketel
Energielabel
A

Parkeergelegenheid

Aanwezig
Ja
Soort parkeergelegenheid
Openbaar
Meld een probleem met deze woning
Contact met de makelaar Bel