- 100 m²
- 2 kamers
- 1974
Samenvatting
- Deze woning wordt sinds 14 oktober 2025 aangeboden door Haverkamp Makelaardij;
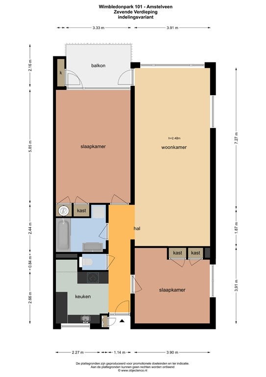
- De galerijflat heeft een woonoppervlakte van 100 m² en beschikt over 2 kamers, waarvan 1 slaapkamer;
- De woning is gebouwd In 1974 en ligt in de buurt Startbaanbuurt in Amstelveen;
- De woning beschikt onder andere over de volgende voorzieningen: Airconditioning, Lift, Bergruimte, Toilet.
Beschrijving
Overdracht
- Vraagprijs
- € 325.000 k.k.
- Aangeboden sinds
- 14-10-2025
- Status
- Beschikbaar
- Beschikbaar
- In overleg
- Bijzonderheden
- Seniorenwoning
- Onderhoudsstaat
- Zeer goed
Oppervlakte en inhoud
- Woonoppervlakte
- 100 m²
- Inhoud
- 311 m³
VvE informatie
- Inschrijving KvK
- Ja
- Jaarlijkse vergadering
- Ja
- Periodieke bijdrage
- Ja (€ 675 per maand)
- Reservefonds aanwezig
- Ja
- Onderhoudsplan
- Ja
- Opstalverzekering
- Ja
Bouw
- Type woning
- Appartement
- Soort woning
- Galerijflat, Service flat
- Soort bouw
- Bestaande bouw
- Bouwjaar
- 1974
- Ligging
-
- Aan een rustige weg
- Aan een park
- Nabij het openbaar vervoer
- Open gebied
- Vrij uitzicht
Indeling
- Aantal kamers
- 2
- Aantal slaapkamers
- 1
- Aantal badkamers
- 1
- Aantal woonlagen
- 1
- Voorzieningen
-
- Airconditioning
- Lift
- Bergruimte
- Toilet
Buitenruimte
- Balkon
- Aanwezig
- Dakterras
- Niet aanwezig
Energie
- Isolatie
- Dubbele beglazing
- Verwarming
- Blokverwarming
- Warm water
- Elektrische boiler
- Energielabel
- C
Parkeergelegenheid
- Aanwezig
- Ja
- Soort parkeergelegenheid
- Openbaar