Contact met de makelaar

Deze woning is gevonden buiten ons eigen netwerk. Met de knop hieronder kom je direct bij de aanbieder terecht.

Nieuw

Meander 28

Bekijk kaart
1181 WN Amstelveen (Stadshart)
€ 750.000 k.k.
  • 143 m²
  • 4 kamers
  • 2006

Samenvatting

  • Deze woning wordt sinds 23 oktober 2025 aangeboden door Keij & Stefels Makelaars en Taxateurs;
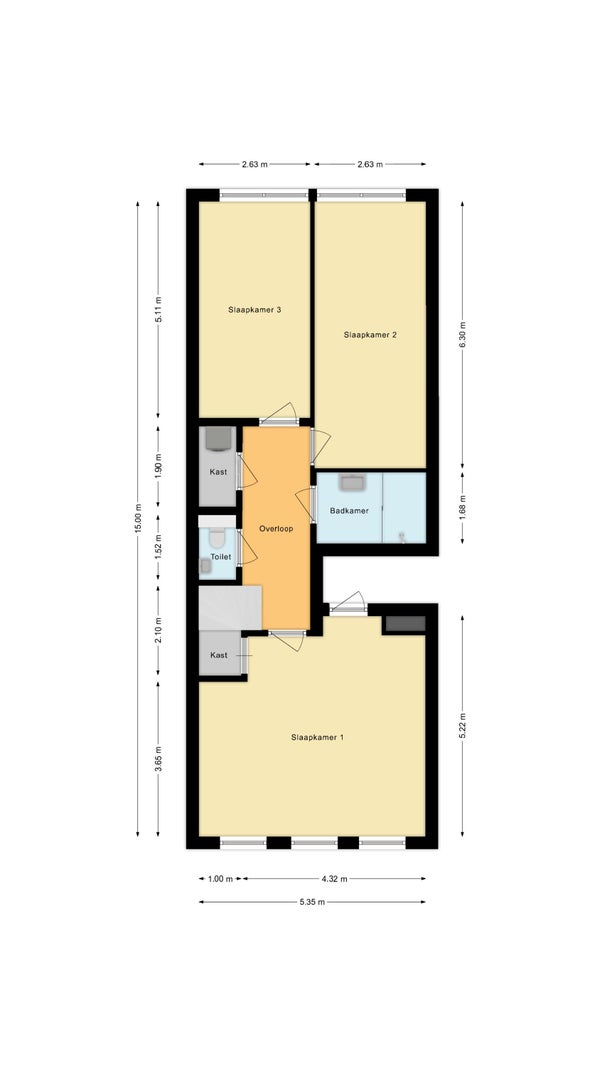
  • De maisonnette heeft een woonoppervlakte van 143 m² en beschikt over 4 kamers, waarvan 3 slaapkamers;
  • De woning is gebouwd In 2006 en ligt in de buurt Stadshart in Amstelveen;
  • De woning beschikt onder andere over de volgende voorzieningen: Lift, Mechanische ventilatie, Douche, Toilet, Wasruimte.

Beschrijving

Overdracht

Vraagprijs
€ 750.000 k.k.
Aangeboden sinds
23-10-2025
Status
Beschikbaar
Beschikbaar
Per direct
Onderhoudsstaat
Goed

Oppervlakte en inhoud

Woonoppervlakte
143 m²
Inhoud
506 m³

Bouw

Type woning
Appartement
Soort woning
Maisonnette, Appartement
Soort bouw
Bestaande bouw
Bouwjaar
2006
Ligging
  • In het centrum
  • Vrij uitzicht

Indeling

Aantal kamers
4
Aantal slaapkamers
3
Aantal badkamers
1
Aantal woonlagen
2
Voorzieningen
  • Lift
  • Mechanische ventilatie
  • Douche
  • Toilet
  • Wasruimte

Buitenruimte

Balkon
Aanwezig
Tuin
Niet aanwezig
Dakterras
Niet aanwezig

Energie

Isolatie
Dubbele beglazing, HR glas
Verwarming
Stadsverwarming
Energielabel
A+

Bergruimte

Schuur/Berging
Aanwezig

Parkeergelegenheid

Aanwezig
Ja
Soort parkeergelegenheid
Openbaar

Garage

Aanwezig
Ja
Omschrijving
Parkeerkelder, parkeerplaats
Meld een probleem met deze woning
Contact met de makelaar Bel