Contact met de makelaar

Deze woning is gevonden buiten ons eigen netwerk. Met de knop hieronder kom je direct bij de aanbieder terecht.

Nieuw

Zwijnenburg 7

Bekijk kaart
2994 EN Barendrecht (Vrijenburg)
€ 472.000 k.k.
  • 114 m²
  • 4 kamers
  • 2007

Samenvatting

  • Deze woning wordt sinds 13 oktober 2025 aangeboden door RE/MAX Makelaarsgroep;
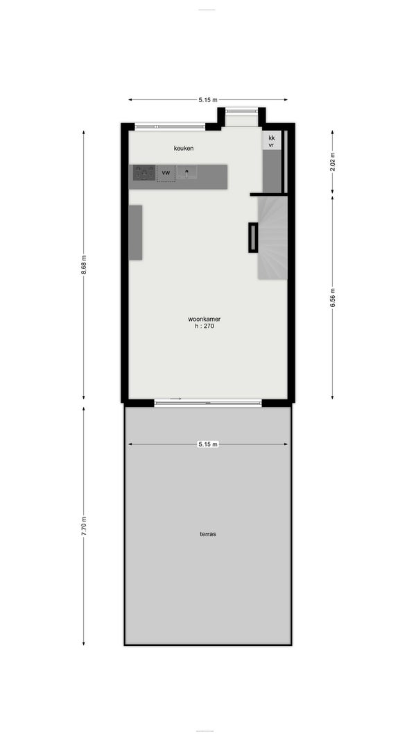
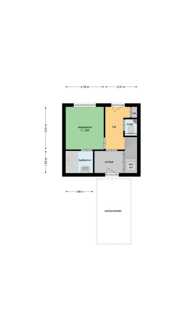
  • De beneden + bovenwoning heeft een woonoppervlakte van 114 m² en beschikt over 4 kamers, waarvan 3 slaapkamers;
  • De woning is gebouwd In 2007 en ligt in de buurt Vrijenburg in Barendrecht;
  • De woning beschikt onder andere over de volgende voorzieningen: Airconditioning, Alarm, Mechanische ventilatie, Rolluiken, Schuifdeuren.

Beschrijving

Overdracht

Vraagprijs
€ 472.000 k.k.
Aangeboden sinds
13-10-2025
Status
Beschikbaar
Beschikbaar
In overleg
Onderhoudsstaat
Goed

Oppervlakte en inhoud

Woonoppervlakte
114 m²
Inhoud
410 m³

VvE informatie

Inschrijving KvK
Ja
Jaarlijkse vergadering
Ja
Periodieke bijdrage
Ja (€ 150 per maand)
Reservefonds aanwezig
Ja
Onderhoudsplan
Ja
Opstalverzekering
Ja

Bouw

Type woning
Appartement
Soort woning
Beneden + bovenwoning, Appartement
Soort bouw
Bestaande bouw
Bouwjaar
2007

Indeling

Aantal kamers
4
Aantal slaapkamers
3
Aantal woonlagen
3
Voorzieningen
  • Airconditioning
  • Alarm
  • Mechanische ventilatie
  • Rolluiken
  • Schuifdeuren

Buitenruimte

Balkon
Niet aanwezig
Tuin
Niet aanwezig
Dakterras
Niet aanwezig

Energie

Verwarming
CV-ketel
Warm water
CV-ketel
Cv-ketel
Remeha (uit 2020, Eigendom)
Energielabel
A

Parkeergelegenheid

Aanwezig
Ja
Soort parkeergelegenheid
Garage

Garage

Aanwezig
Nee
Meld een probleem met deze woning
Contact met de makelaar Bel