Contact met de makelaar

Deze woning is gevonden buiten ons eigen netwerk. Met de knop hieronder kom je direct bij de aanbieder terecht.

Nieuw

Piet van Thielplein

Bekijk kaart
5741 CP Beek en Donk (Donk)
€ 345.000 k.k.
  • 93 m²
  • 3 kamers
  • 2002

Samenvatting

  • Deze woning wordt sinds 21 januari 2026 aangeboden door Van den Hurk Makelaars;
  • De galerijflat heeft een woonoppervlakte van 93 m² en beschikt over 3 kamers, waarvan 2 slaapkamers;
  • De woning is gebouwd In 2002 en ligt in de buurt Donk in Beek en Donk.

Beschrijving

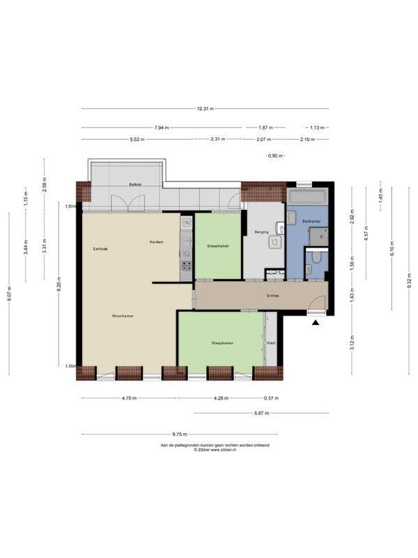
Dit moderne 3-kamer appartement is gelegen op de tweede verdieping aan het vernieuwde Piet van Thielplein, waar elke woensdag de weekmarkt plaatsvindt. Met 93 m² woonoppervlakte biedt het een ruime woonkamer en open keuken, voorzien van moderne apparatuur, zoals een granieten werkblad en RVS afzuigkap. De woning beschikt over twee slaapkamers en een ruime badkamer met ligbad en douche. Een eigen dakterras van 14 m² en een inpandige berging van 7 m² zijn ook inbegrepen. Het appartement is instapklaar en heeft energielabel B. De maandelijkse VvE-bijdrage bedraagt € 173,-. Op de begane grond zijn er gezamenlijke voorzieningen en toegang tot de openbare parkeerplaatsen in de straat. Ideaal voor stads wonen met comfort.

Overdracht

Vraagprijs
€ 345.000 k.k.
Aangeboden sinds
21-01-2026
Status
Beschikbaar
Beschikbaar
Per direct

Oppervlakte en inhoud

Woonoppervlakte
93 m²

Bouw

Type woning
Appartement
Soort woning
Galerijflat
Soort bouw
Bestaande bouw
Bouwjaar
2002

Indeling

Aantal kamers
3
Aantal slaapkamers
2
Aantal badkamers
1

Buitenruimte

Dakterras
Niet aanwezig

Energie

Energielabel
B
Meld een probleem met deze woning