Contact met de makelaar

Deze woning is gevonden buiten ons eigen netwerk. Met de knop hieronder kom je direct bij de aanbieder terecht.

Wijckermolen

Bekijk kaart
1941 JA Beverwijk (Meerplein)
€ 295.000 k.k.
  • 76 m²
  • 3 kamers
  • 1976

Samenvatting

  • Deze woning wordt sinds 3 maanden aangeboden door Tromp Makelaardij;
  • De galerijflat heeft een woonoppervlakte van 76 m² en beschikt over 3 kamers, waarvan 2 slaapkamers;
  • De woning is gebouwd In 1976 en ligt in de buurt Meerplein in Beverwijk.

Beschrijving

Omschrijving
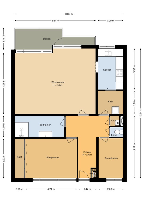
Gelijkvloers wonen in het centrum met prachtig uitzicht op de haven! Dit ruime appartement heeft een A-label en ligt direct tegenover de lift, wat zorgt voor een gemakkelijke toegang. Met een woonoppervlakte van 76 m² en een balkon van 8 m², ideaal voor wie op zoek is naar een gelijkvloerse woning.

Gelegen naast de gezellige Breestraat met restaurants, winkels en cafés. Parkeren kost minder dan €30 per jaar, en je bent snel bij het NS-station en de A9. Dit appartement heeft twee slaapkamers, een ruime woonkamer met open keuken, een badkamer en een berging.

Bijzonderheden: actieve VvE, lage servicekosten, en snel beschikbaar. Ideale locatie voor liefhebbers van het stadsleven. Vraagprijs: €295.000,-.

Overdracht

Vraagprijs
€ 295.000 k.k.
Aangeboden sinds
16-10-2025
Status
Beschikbaar
Beschikbaar
In overleg

Oppervlakte en inhoud

Woonoppervlakte
76 m²

Bouw

Type woning
Appartement
Soort woning
Galerijflat
Soort bouw
Bestaande bouw
Bouwjaar
1976

Indeling

Aantal kamers
3
Aantal slaapkamers
2
Aantal badkamers
1

Buitenruimte

Dakterras
Niet aanwezig

Energie

Energielabel
A
Meld een probleem met deze woning