Contact met de makelaar

Deze woning is gevonden buiten ons eigen netwerk. Met de knop hieronder kom je direct bij de aanbieder terecht.

Nieuw

Laan van Blois 26

Bekijk kaart
1943 MK Beverwijk (Warande)
€ 285.000 k.k.
  • 80 m²
  • 3 kamers
  • 1958

Samenvatting

  • Deze woning wordt sinds 1 oktober 2025 aangeboden door De Huizenbemiddelaar Amsterdam;
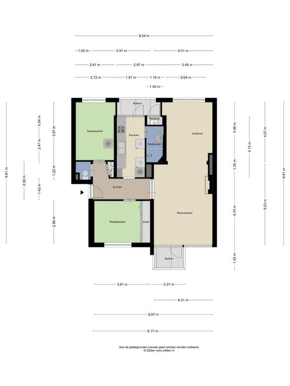
  • De portiekflat heeft een woonoppervlakte van 80 m² en beschikt over 3 kamers, waarvan 2 slaapkamers;
  • De woning is gebouwd In 1958 en ligt in de buurt Warande in Beverwijk;
  • De woning beschikt onder andere over de volgende voorzieningen: Kabel TV, Glasvezelaansluiting, Internetaansluiting, Douche, Toilet.

Beschrijving

Overdracht

Vraagprijs
€ 285.000 k.k.
Aangeboden sinds
01-10-2025
Status
Beschikbaar
Beschikbaar
In overleg
Onderhoudsstaat
Goed

Oppervlakte en inhoud

Woonoppervlakte
80 m²
Inhoud
266 m³

VvE informatie

Inschrijving KvK
Ja
Jaarlijkse vergadering
Ja
Periodieke bijdrage
Ja (€ 216 per maand)
Reservefonds aanwezig
Ja
Onderhoudsplan
Ja
Opstalverzekering
Ja

Bouw

Type woning
Appartement
Soort woning
Portiekflat, Appartement
Soort bouw
Bestaande bouw
Bouwjaar
1958
Ligging
In een woonwijk

Indeling

Aantal kamers
3
Aantal slaapkamers
2
Aantal badkamers
1
Aantal woonlagen
1
Voorzieningen
  • Kabel TV
  • Glasvezelaansluiting
  • Internetaansluiting
  • Douche
  • Toilet

Buitenruimte

Balkon
Aanwezig
Dakterras
Niet aanwezig

Energie

Isolatie
Dubbele beglazing, Dakisolatie, Muurisolatie
Verwarming
CV-ketel
Warm water
CV-ketel
Energielabel
B

Bergruimte

Schuur/Berging
Aanwezig

Parkeergelegenheid

Aanwezig
Ja
Soort parkeergelegenheid
Openbaar
Meld een probleem met deze woning
Contact met de makelaar Bel