Contact met de makelaar

Deze woning is gevonden buiten ons eigen netwerk. Met de knop hieronder kom je direct bij de aanbieder terecht.

Nieuw

Burgerweg 9 ap8

Bekijk kaart
1754 KC Burgerbrug (Buitengebied Burgerbrug)
€ 175.000 k.k.
  • 66 m²
  • 3 kamers
  • 1998

Samenvatting

  • Deze woning wordt sinds 28 januari 2026 aangeboden door Kloes & Goudsblom makelaardij Castricum;
  • De galerijflat heeft een woonoppervlakte van 66 m² en beschikt over 3 kamers, waarvan 2 slaapkamers;
  • De woning is gebouwd In 1998 en ligt in de buurt Buitengebied Burgerbrug in Burgerbrug.

Beschrijving

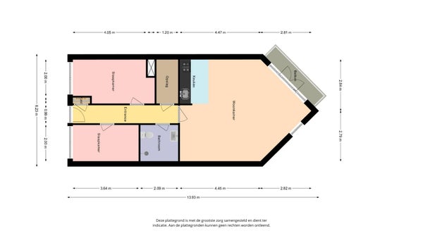
Dit sfeervolle appartement bevindt zich op de eerste verdieping van het appartementencomplex Residenz Polderblick aan de Burgerweg in Burgerbrug. Bij binnenkomst zijn er aan beide zijden twee nette slaapkamers. De hal geeft toegang tot een ruime berging en een badkamer met douche, toilet en wastafel. De lichte woonkamer met open keuken biedt toegang tot een balkon van ongeveer 4 m², met uitzicht over de weilanden en de Schoorlse duinen, perfect om van de zon te genieten dankzij de zuidwestelijke ligging. Het appartement heeft een woonoppervlakte van 66 m² en is verder uitgerust met een energielabel A. Dit is een recreatiewoning; permanent wonen is niet toegestaan. Overname kan inclusief aanwezige roerende zaken.

Overdracht

Vraagprijs
€ 175.000 k.k.
Aangeboden sinds
28-01-2026
Status
Beschikbaar
Beschikbaar
Per direct

Oppervlakte en inhoud

Woonoppervlakte
66 m²

Bouw

Type woning
Appartement
Soort woning
Galerijflat
Soort bouw
Bestaande bouw
Bouwjaar
1998

Indeling

Aantal kamers
3
Aantal slaapkamers
2
Aantal badkamers
1

Buitenruimte

Dakterras
Niet aanwezig

Energie

Energielabel
A
Meld een probleem met deze woning