Contact met de makelaar

Deze woning is gevonden buiten ons eigen netwerk. Met de knop hieronder kom je direct bij de aanbieder terecht.

Verkocht onder voorbehoud

Heemwerf 74

Bekijk kaart
2678 DP De Lier (Molensloot)
€ 370.000 k.k.
  • 72 m²
  • 3 kamers
  • 2004

Samenvatting

  • Deze woning wordt sinds 6 weken aangeboden door Noordam Makelaardij;
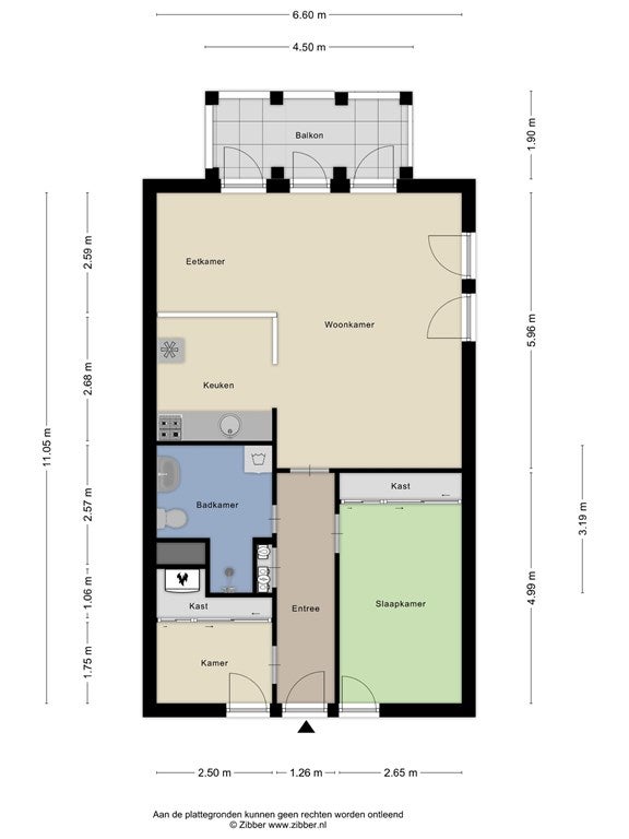
  • De galerijflat heeft een woonoppervlakte van 72 m² en beschikt over 3 kamers, waarvan 2 slaapkamers;
  • De woning is gebouwd In 2004 en ligt in de buurt Molensloot in De Lier;
  • De woning beschikt onder andere over de volgende voorzieningen: Frans balkon, Mechanische ventilatie, Douche, Toilet.

Beschrijving

Overdracht

Vraagprijs
€ 370.000 k.k.
Aangeboden sinds
28-10-2025
Status
Verkocht onder voorbehoud
Beschikbaar
In overleg
Onderhoudsstaat
Goed

Oppervlakte en inhoud

Woonoppervlakte
72 m²
Inhoud
238 m³

VvE informatie

Inschrijving KvK
Ja
Jaarlijkse vergadering
Ja
Periodieke bijdrage
Ja (€ 115 per maand)
Reservefonds aanwezig
Ja
Opstalverzekering
Ja

Bouw

Type woning
Appartement
Soort woning
Galerijflat, Appartement
Soort bouw
Bestaande bouw
Bouwjaar
2004
Ligging
In een woonwijk

Indeling

Aantal kamers
3
Aantal slaapkamers
2
Aantal badkamers
1
Aantal woonlagen
1
Voorzieningen
  • Frans balkon
  • Mechanische ventilatie
  • Douche
  • Toilet

Buitenruimte

Balkon
Aanwezig
Dakterras
Niet aanwezig

Energie

Isolatie
Volledig geïsoleerd
Verwarming
CV-ketel
Warm water
CV-ketel
Cv-ketel
Remeha (Gas, uit 2021, Eigendom)
Energielabel
A

Bergruimte

Schuur/Berging
Aanwezig

Parkeergelegenheid

Aanwezig
Ja
Soort parkeergelegenheid
Openbaar
Meld een probleem met deze woning