Contact met de makelaar

Deze woning is gevonden buiten ons eigen netwerk. Met de knop hieronder kom je direct bij de aanbieder terecht.

Verkocht onder voorbehoud

Bosboom-Toussaintplein 236

Bekijk kaart
2624 DP Delft (Voorhof-Hoogbouw)
Prijs op aanvraag
  • 66 m²
  • 3 kamers
  • 1968

Samenvatting

  • Deze woning wordt sinds 6 weken aangeboden door Maliepaard Makelaars;
  • De galerijflat heeft een woonoppervlakte van 66 m² en beschikt over 3 kamers, waarvan 2 slaapkamers;
  • De woning is gebouwd In 1968 en ligt in de buurt Voorhof-Hoogbouw in Delft.

Beschrijving

Instapklaar 3-kamerappartement met uitzicht en zuidbalkon.

Licht en instapklaar 3-kamerappartement (2 slaapkamers) op de 14e verdieping, met een zonnig balkon op het zuiden en een weids uitzicht over Delft en richting Rotterdam (energielabel B).

Vier redenen waarom dit appartement je meteen zal aanspreken

  1. Instapklaar met een frisse, moderne uitstraling
    De keuken, badkamer en meterkast zijn vernieuwd en ook wanden, vloeren en plafonds zijn strak afgewerkt. Hier kun je zonder klussen direct intrekken.

  2. Uitzicht dat blijft verrassen
    Aan de voorzijde kijk je uit over de Delftse binnenstad, aan de achterzijde richting Rotterdam. Vooral ’s avonds zorgen de lichtjes voor een bijzonder sfeervol panorama.

  3. Perfect gelegen
    Station Delft Campus, tramlijn 1 en winkelcentrum De Hoven liggen op loopafstand. TU Delft en het historische centrum bereik je binnen enkele minuten per fiets.

  4. Comfortabel wonen in een verzorgd complex
    Het complex wordt actief beheerd door een betrokken VvE met aandacht voor duurzaamheid en wooncomfort. De aanwezigheid van een huismeester draagt bij aan een prettig en veilig woongevoel.

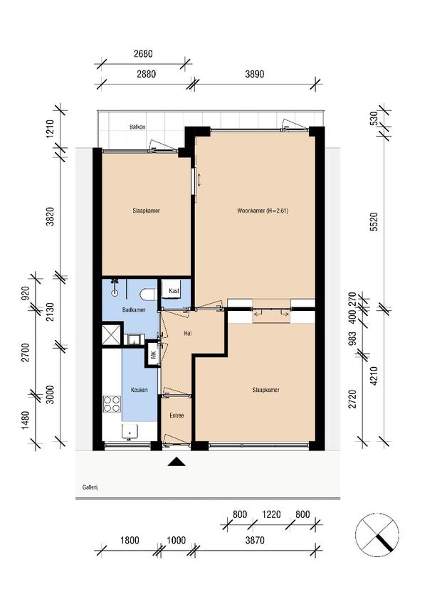
Indeling
Het appartement voelt ruim en licht aan en beschikt over twee slaapkamers. Via de stijlvolle en-suite deuren is de woonkamer verbonden met de tweede slaapkamer, die momenteel is ingericht als eet- of werkkamer. Deze ruimte is volwaardig te gebruiken als slaapkamer en biedt daarnaast extra kastruimte.
De hoofdslaapkamer grenst aan het zonnige balkon op het zuiden — een fijne plek om rustig te genieten van het uitzicht.
De moderne keuken is voorzien van een koel-vriescombinatie, oven en vaatwasser. De vernieuwde badkamer beschikt over een comfortabele inloopdouche, een wastafelmeubel met bergruimte en een toilet.
Daarnaast is er een aparte wasruimte voor wasmachine, droger en boiler, een garderobe in de centrale hal en een eigen (fietsen)berging op de begane grond.

Overige informatie
Maandelijkse VvE-bijdrage: € 214,-
Blokverwarming (voorschot stookkosten: € 90,- p.m.)
Warm water via eigen boiler
Meterkast vernieuwd (4 groepen, 1 aardlekschakelaar)
Energielabel B
Vloeren: laminaat; keuken en badkamer voorzien van tegelvloer
Actieve VvE met focus op duurzaamheid
Huismeester aanwezig
Eigen berging op de begane grond
Voldoende gratis parkeergelegenheid, incl. vier laadpunten voor elektrische auto’s
Oplevering: in overleg, begin 2026

Een plein met een verhaal: Anna Louise Geertruida Bosboom-Toussaint (1812–1886) was een Nederlandse schrijfster, vooral bekend om haar historische romans. In haar werk behandelde zij morele en sociale vraagstukken van haar tijd, met bijzondere aandacht voor de psychologische diepgang van haar personages en de complexe maatschappelijke verhoudingen. Tot haar bekendste werken behoren Majoor Frans en De Delftsche wonderdokter.

Overdracht

Vraagprijs
Prijs op aanvraag
Aangeboden sinds
18-12-2025
Status
Verkocht onder voorbehoud
Beschikbaar
In overleg
Onderhoudsstaat
Goed

Oppervlakte en inhoud

Woonoppervlakte
66 m²
Inhoud
175 m³

Bouw

Type woning
Appartement
Soort woning
Galerijflat, Appartement
Soort bouw
Bestaande bouw
Bouwjaar
1968

Indeling

Aantal kamers
3
Aantal slaapkamers
2
Aantal badkamers
1
Verdieping
14
Woonlagen complex
1

Buitenruimte

Balkon
Niet aanwezig
Tuin
Niet aanwezig
Dakterras
Niet aanwezig

Energie

Energielabel
B

Parkeergelegenheid

Aanwezig
Nee

Garage

Aanwezig
Nee
Meld een probleem met deze woning