Contact met de makelaar

Deze woning is gevonden buiten ons eigen netwerk. Met de knop hieronder kom je direct bij de aanbieder terecht.

Onder bod

Schalk Burgerstraat 441

Bekijk kaart
2572 TD Den Haag (Transvaalkwartier-Zuid)
€ 210.000 k.k.
  • 74 m²
  • 3 kamers
  • 1925

Samenvatting

  • Deze woning wordt sinds 7 weken aangeboden door Den Braber & Ram Vastgoed;
  • De portiekflat heeft een woonoppervlakte van 74 m² en beschikt over 3 kamers, waarvan 2 slaapkamers;
  • De woning is gebouwd In 1925 en ligt in de buurt Transvaalkwartier-Zuid in Den Haag.

Beschrijving

Let op kluswoning zonder CV!

Op de hoek van Schalkburgerstraat en de Durbanstraat gelegen 3-kamer hoekappartement.

De ligging is bijzonder gunstig. Deze woning bevindt zich op fietsafstand van het bruisende centrum van Den Haag en op loopafstand van diverse winkels, waaronder supermarkten en de Haagse markt. Daarnaast is de bereikbaarheid uitstekend, met de dichtstbijzijnde uitvalsweg op slechts 7 minuten rijden. Ook het openbaar vervoer is op loopafstand te vinden. De wijk is een levendige en kindvriendelijke buurt met relatief veel jonge gezinnen. Je vindt hier diverse scholen, speeltuinen en groenvoorzieningen. Dankzij de centrale ligging geniet je van een goede mix van stadse faciliteiten en een rustige woonomgeving.

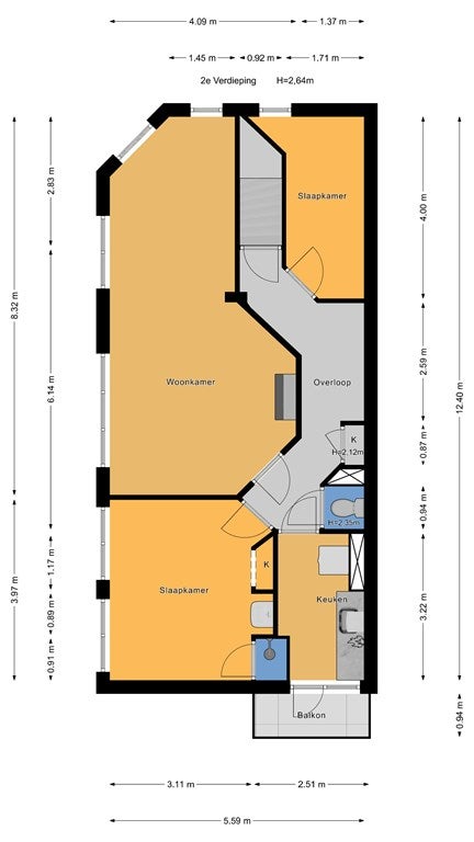
Indeling
Open portiek met trap naar de eerste verdieping. Entree van het appartement met binnentrap naar de tweede verdieping.

De ruime hal geeft toegang tot alle vertrekken.

De lichte woonkamer heeft door de hoekligging grote raampartijen, wat zorgt voor een prettige, open sfeer. Aan de voorzijde is de eerste slaapkamer te vinden en aan de achterzijde de tweede slaapkamer. De achterste slaapkamer beschikt over een wastafel en douche.

De keuken is eenvoudig, maar ruim en heeft toegang tot het achterbalkon.

Bijzonderheden:

  • VVE is recent opgericht conform de regels;
  • VVE bijdrage € 100,80 per maand;
  • Beheerder is Van Driel;
  • Energielabel C;
  • Volledig dubbel glas;
  • Verwarming middels gaskachel. GEEN CV!
  • Eeuwigdurend recht van erfpacht; De grondwaarde is € 3.309,00 en de canon bedraagt per halfjaar achteraf € 14,89 + € 16,50 beheerkosten;
  • De eerstvolgende canonherziening vindt plaats op 1-1-2027;
  • Verkoopvoorwaarden den Braber & Ram;
  • Oplevering voorkeur direct;

Overdracht

Vraagprijs
€ 210.000 k.k.
Aangeboden sinds
04-12-2025
Status
Onder bod
Beschikbaar
In overleg
Onderhoudsstaat
Redelijk

Oppervlakte en inhoud

Woonoppervlakte
74 m²
Inhoud
248 m³

VvE informatie

Inschrijving KvK
Ja
Jaarlijkse vergadering
Ja
Periodieke bijdrage
Ja (€ 101 per maand)
Opstalverzekering
Ja

Bouw

Type woning
Appartement
Soort woning
Portiekflat, Appartement
Soort bouw
Bestaande bouw
Bouwjaar
1925
Ligging
Aan een rustige weg

Indeling

Aantal kamers
3
Aantal slaapkamers
2
Aantal woonlagen
1
Verdieping
3
Voorzieningen
Toilet

Buitenruimte

Balkon
Aanwezig
Dakterras
Niet aanwezig

Energie

Isolatie
Dubbele beglazing
Verwarming
Gaskachel
Energielabel
G
Meld een probleem met deze woning