Contact met de makelaar

Deze woning is gevonden buiten ons eigen netwerk. Met de knop hieronder kom je direct bij de aanbieder terecht.

Nieuw

Moerweg 368

Bekijk kaart
2531 BH Den Haag (Moerwijk-Noord)
€ 299.000 k.k.
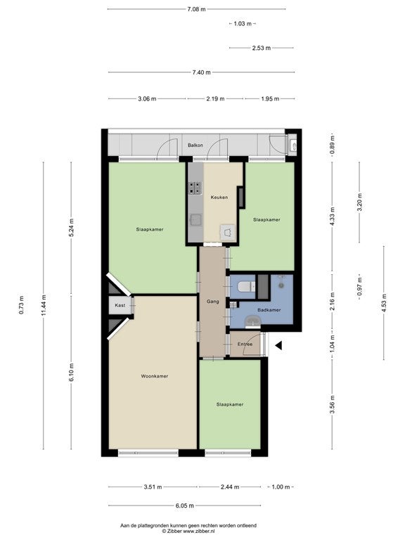
  • 77 m²
  • 4 kamers
  • 1940

Samenvatting

  • Deze woning wordt sinds 22 oktober 2025 aangeboden door Hoeksteen Makelaardij;
  • De portiekflat heeft een woonoppervlakte van 77 m² en beschikt over 4 kamers, waarvan 3 slaapkamers;
  • De woning is gebouwd In 1940 en ligt in de buurt Moerwijk-Noord in Den Haag.

Beschrijving

Overdracht

Vraagprijs
€ 299.000 k.k.
Aangeboden sinds
22-10-2025
Status
Beschikbaar
Beschikbaar
Per direct
Onderhoudsstaat
Zeer goed

Oppervlakte en inhoud

Woonoppervlakte
77 m²
Inhoud
256 m³

Bouw

Type woning
Appartement
Soort woning
Portiekflat, Appartement
Soort bouw
Bestaande bouw
Bouwjaar
1940

Indeling

Aantal kamers
4
Aantal slaapkamers
3
Aantal badkamers
1
Aantal woonlagen
1
Voorzieningen
  • Bergruimte
  • Toilet

Buitenruimte

Balkon
Aanwezig
Dakterras
Niet aanwezig

Energie

Isolatie
Dubbele beglazing
Verwarming
CV-ketel
Warm water
CV-ketel
Energielabel
C

Bergruimte

Schuur/Berging
Aanwezig

Parkeergelegenheid

Aanwezig
Ja
Soort parkeergelegenheid
Openbaar
Meld een probleem met deze woning
Contact met de makelaar Bel