Contact met de makelaar

Deze woning is gevonden buiten ons eigen netwerk. Met de knop hieronder kom je direct bij de aanbieder terecht.

Nieuw

Bosschestraat 68

Bekijk kaart
2587 HG Den Haag (Belgisch Park)
€ 750.000 k.k.
  • 152 m²
  • 5 kamers
  • 1923

Samenvatting

  • Deze woning wordt sinds 30 oktober 2025 aangeboden door Wooncompany Den Haag;
  • De bovenwoning heeft een woonoppervlakte van 152 m² en beschikt over 5 kamers, waarvan 4 slaapkamers;
  • De woning is gebouwd In 1923 en ligt in de buurt Belgisch Park in Den Haag;
  • De woning beschikt onder andere over de volgende voorzieningen: Bad, Mechanische ventilatie, Dakterras, Douche, Toilet.

Beschrijving

Meer woninginformatie bekijken?

Log in of registreer gratis.

Overdracht

Vraagprijs
€ 750.000 k.k.
Aangeboden sinds
30-10-2025
Status
Beschikbaar
Beschikbaar
In overleg
Onderhoudsstaat
Zeer goed

Oppervlakte en inhoud

Woonoppervlakte
152 m²
Inhoud
508 m³

VvE informatie

Inschrijving KvK
Ja
Jaarlijkse vergadering
Ja
Periodieke bijdrage
Ja (€ 65 per maand)
Reservefonds aanwezig
Ja
Onderhoudsplan
Ja
Opstalverzekering
Ja

Bouw

Type woning
Appartement
Soort woning
Bovenwoning, Dubbel bovenhuis
Soort bouw
Bestaande bouw
Bouwjaar
1923
Ligging
  • Nabij het openbaar vervoer
  • Nabij een school

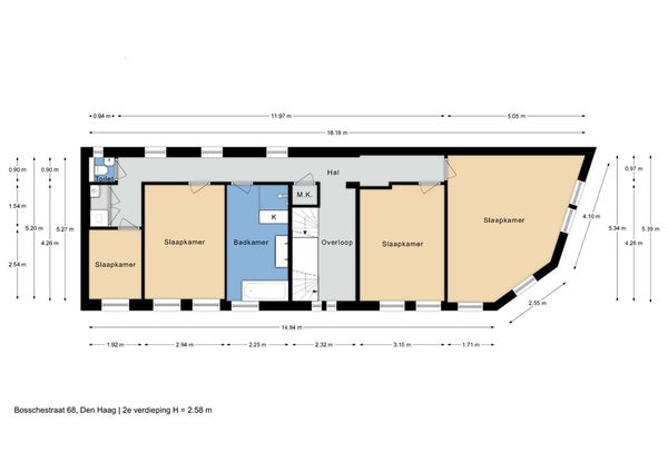
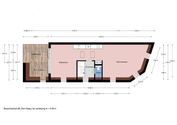
Indeling

Aantal kamers
5
Aantal slaapkamers
4
Aantal badkamers
1
Aantal woonlagen
2
Voorzieningen
  • Bad
  • Mechanische ventilatie
  • Dakterras
  • Douche
  • Toilet

Buitenruimte

Balkon
Niet aanwezig
Dakterras
Aanwezig

Energie

Isolatie
Dubbele beglazing, Vloerisolatie
Verwarming
CV-ketel
Warm water
CV-ketel
Energielabel
A

Parkeergelegenheid

Aanwezig
Ja
Soort parkeergelegenheid
Openbaar
Meld een probleem met deze woning
Contact met de makelaar Bel