Contact met de makelaar

Deze woning is gevonden buiten ons eigen netwerk. Met de knop hieronder kom je direct bij de aanbieder terecht.

Nieuw

Denenburg 98

Bekijk kaart
2591 AD Den Haag (Burgen en Horsten)
€ 259.000 k.k.
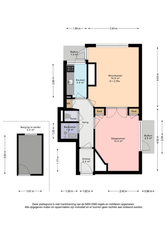
  • 49 m²
  • 2 kamers
  • 1960

Samenvatting

  • Deze woning wordt sinds 8 oktober 2025 aangeboden door RE/MAX Adviseurs Haaglanden;
  • De portiekflat heeft een woonoppervlakte van 49 m² en beschikt over 2 kamers, waarvan 1 slaapkamer;
  • De woning is gebouwd In 1960 en ligt in de buurt Burgen en Horsten in Den Haag;
  • De woning beschikt onder andere over de volgende voorzieningen: Kabel TV, Internetaansluiting, Douche, Toilet.

Beschrijving

Overdracht

Vraagprijs
€ 259.000 k.k.
Aangeboden sinds
08-10-2025
Status
Beschikbaar
Beschikbaar
In overleg
Onderhoudsstaat
Goed

Oppervlakte en inhoud

Woonoppervlakte
49 m²
Inhoud
174 m³

Bouw

Type woning
Appartement
Soort woning
Portiekflat, Appartement
Soort bouw
Bestaande bouw
Bouwjaar
1960
Ligging
  • Aan een rustige weg
  • In een woonwijk
  • Nabij een school
  • Nabij een winkelcentrum
  • Vrij uitzicht

Indeling

Aantal kamers
2
Aantal slaapkamers
1
Aantal badkamers
1
Aantal woonlagen
1
Voorzieningen
  • Kabel TV
  • Internetaansluiting
  • Douche
  • Toilet

Buitenruimte

Balkon
Aanwezig
Dakterras
Niet aanwezig

Energie

Isolatie
Dubbele beglazing
Verwarming
CV-ketel
Warm water
CV-ketel
Cv-ketel
Remeha (Gas, uit 2021, Eigendom)
Energielabel
F

Bergruimte

Schuur/Berging
Aanwezig

Parkeergelegenheid

Aanwezig
Ja
Soort parkeergelegenheid
Openbaar
Meld een probleem met deze woning
Contact met de makelaar Bel