Contact met de makelaar

Deze woning is gevonden buiten ons eigen netwerk. Met de knop hieronder kom je direct bij de aanbieder terecht.

Nieuw

Hector Berliozkade 68

Bekijk kaart
2551 XR Den Haag (Nieuw Waldeck)
€ 340.000 k.k.
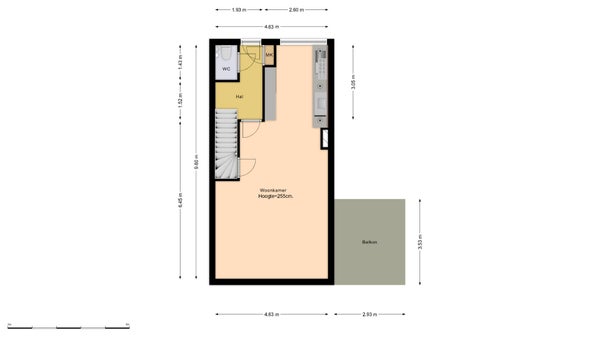
  • 79 m²
  • 3 kamers
  • 1981

Samenvatting

  • Deze woning wordt sinds 10 oktober 2025 aangeboden door Doen NVM Makelaars Den Haag;
  • De bovenwoning heeft een woonoppervlakte van 79 m² en beschikt over 3 kamers, waarvan 2 slaapkamers;
  • De woning is gebouwd In 1981 en ligt in de buurt Nieuw Waldeck in Den Haag.

Beschrijving

Overdracht

Vraagprijs
€ 340.000 k.k.
Aangeboden sinds
10-10-2025
Status
Beschikbaar
Beschikbaar
In overleg
Onderhoudsstaat
Goed

Oppervlakte en inhoud

Woonoppervlakte
79 m²
Inhoud
278 m³

VvE informatie

Inschrijving KvK
Ja
Jaarlijkse vergadering
Ja
Periodieke bijdrage
Ja (€ 196 per maand)
Reservefonds aanwezig
Ja
Onderhoudsplan
Ja
Opstalverzekering
Ja

Bouw

Type woning
Appartement
Soort woning
Bovenwoning, Dubbel bovenhuis
Soort bouw
Bestaande bouw
Bouwjaar
1981
Ligging
  • Aan een rustige weg
  • In een woonwijk
  • Vrij uitzicht

Indeling

Aantal kamers
3
Aantal slaapkamers
2
Aantal woonlagen
2
Voorzieningen
  • Dakterras
  • Toilet

Buitenruimte

Balkon
Niet aanwezig
Tuin
Aanwezig (10 m², gelegen op het zuiden)
Tuinbeschrijving
zonneterras
Dakterras
Aanwezig

Energie

Isolatie
Dubbele beglazing
Verwarming
CV-ketel
Warm water
CV-ketel
Cv-ketel
AGPO HR Econpact (Gas, uit 2002, Eigendom)
Energielabel
B

Bergruimte

Schuur/Berging
Aanwezig
Omschrijving
Inpandig

Parkeergelegenheid

Aanwezig
Ja
Soort parkeergelegenheid
Openbaar

Garage

Aanwezig
Ja
Omschrijving
Parkeerplaats
Meld een probleem met deze woning
Contact met de makelaar Bel