Contact met de makelaar

Deze woning is gevonden buiten ons eigen netwerk. Met de knop hieronder kom je direct bij de aanbieder terecht.

Nieuw

Johannes Bildersstraat 30

Bekijk kaart
2596 EH Den Haag (Van Hoytemastraat en omgeving)
€ 700.000 k.k.
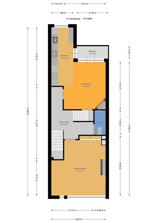
  • 125 m²
  • 5 kamers
  • 1930

Samenvatting

  • Deze woning wordt sinds 24 oktober 2025 aangeboden door VK Makelaars;
  • De bovenwoning heeft een woonoppervlakte van 125 m² en beschikt over 5 kamers, waarvan 3 slaapkamers;
  • De woning is gebouwd In 1930 en ligt in de buurt Van Hoytemastraat en omgeving in Den Haag;
  • De woning beschikt onder andere over de volgende voorzieningen: Bad, Kabel TV, Glasvezelaansluiting, Open haard, Internetaansluiting, Mechanische ventilatie, Dakterras, Douche, Dakraam, Toilet, Wasruimte.

Beschrijving

Meer woninginformatie bekijken?

Log in of registreer gratis.

Overdracht

Vraagprijs
€ 700.000 k.k.
Aangeboden sinds
24-10-2025
Status
Beschikbaar
Beschikbaar
In overleg
Onderhoudsstaat
Zeer goed

Oppervlakte en inhoud

Woonoppervlakte
125 m²
Inhoud
467 m³

VvE informatie

Inschrijving KvK
Ja
Periodieke bijdrage
Ja (€ 150 per maand)
Reservefonds aanwezig
Ja
Onderhoudsplan
Ja
Opstalverzekering
Ja

Bouw

Type woning
Appartement
Soort woning
Bovenwoning, Dubbel bovenhuis
Soort bouw
Bestaande bouw
Bouwjaar
1930
Ligging
  • Aan een rustige weg
  • In een woonwijk
  • In bosrijke omgeving
  • Nabij een school

Indeling

Aantal kamers
5
Aantal slaapkamers
3
Aantal badkamers
2
Aantal woonlagen
3
Voorzieningen
  • Bad
  • Kabel TV
  • Glasvezelaansluiting
  • Open haard
  • Internetaansluiting
  • Mechanische ventilatie
  • Dakterras
  • Douche
  • Dakraam
  • Toilet
  • Wasruimte

Buitenruimte

Balkon
Aanwezig
Dakterras
Aanwezig

Energie

Isolatie
Dubbele beglazing
Verwarming
CV-ketel, Open haard
Warm water
CV-ketel
Cv-ketel
Intergas Kombi Kompakt HRE 36/30 A (Gas, uit 2022)
Energielabel
D

Parkeergelegenheid

Aanwezig
Ja
Soort parkeergelegenheid
Openbaar
Meld een probleem met deze woning
Contact met de makelaar Bel