Contact met de makelaar

Deze woning is gevonden buiten ons eigen netwerk. Met de knop hieronder kom je direct bij de aanbieder terecht.

Valkenboslaan

Bekijk kaart
2563 CV Den Haag (Valkenboskwartier)
€ 375.000 k.k.
  • 89 m²
  • 3 kamers
  • 1914

Samenvatting

  • Deze woning wordt sinds 30 oktober 2025 aangeboden door DOEN NVM Makelaars - Voorburg;
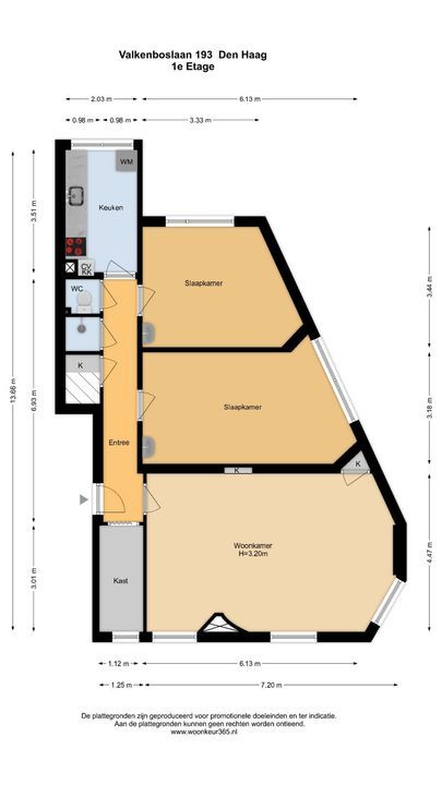
  • De galerijflat heeft een woonoppervlakte van 89 m² en beschikt over 3 kamers, waarvan 2 slaapkamers;
  • De woning is gebouwd In 1914 en ligt in de buurt Valkenboskwartier in Den Haag.

Beschrijving

Meer woninginformatie bekijken?

Log in of registreer gratis.

Overdracht

Vraagprijs
€ 375.000 k.k.
Aangeboden sinds
30-10-2025
Status
Beschikbaar
Beschikbaar
In overleg

Oppervlakte en inhoud

Woonoppervlakte
89 m²

Bouw

Type woning
Appartement
Soort woning
Galerijflat
Soort bouw
Bestaande bouw
Bouwjaar
1914

Indeling

Aantal kamers
3
Aantal slaapkamers
2
Aantal badkamers
1

Buitenruimte

Dakterras
Niet aanwezig

Energie

Energielabel
D
Meld een probleem met deze woning