Contact met de aanbieder

Deze woning is gevonden buiten ons eigen netwerk. Via de knop hieronder ga je direct naar de website van de aanbieder.

Nieuw

Frederikstraat 795

Bekijk kaart
2514 LW Den Haag (Willemspark)
€ 385.000 k.k.
  • 66 m²
  • 3 kamers
  • 1976

Samenvatting

  • Deze woning wordt sinds 23 februari 2026 aangeboden door NassauHuis Makelaardij o.g.;
  • De galerijflat heeft een woonoppervlakte van 66 m² en beschikt over 3 kamers, waarvan 2 slaapkamers;
  • De woning is gebouwd In 1976 en ligt in de buurt Willemspark in Den Haag.

Beschrijving

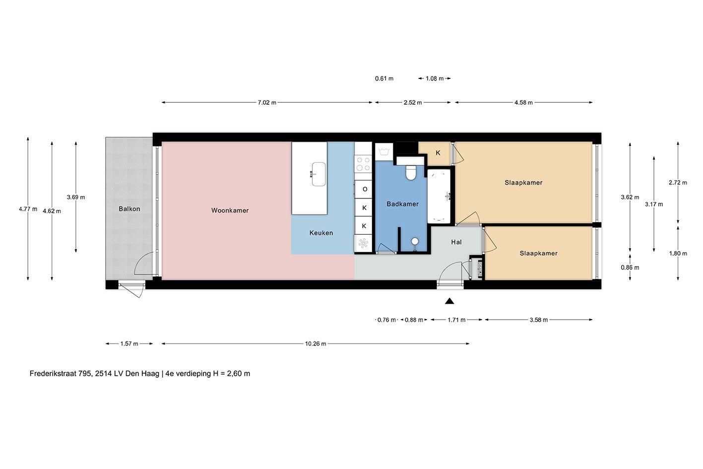
Deze heldere twee-slaapkamer appartement ligt in het charmante Willemspark, een van de aantrekkelijkste wijken van Den Haag, op loopafstand van de stad. Dichtbij openbaar vervoer, restaurants, winkels en het centraal station. De indeling omvat een beveiligde hoofdingang met intercom, lift naar de vierde verdieping en een hal die leidt naar een lichte woonkamer met een moderne open keuken, uitgerust met een gasfornuis, afzuigkap, oven, koel-vriescombinatie, vaatwasser en een groot keukeneiland. Er zijn twee comfortabele slaapkamers aan de voorkant en een ruime badkamer met ligbad, aparte douche en wasmachine-aansluiting. Het appartement heeft een balkon van 7,5 m², een privé berging van 4 m² en een parkeerplaats beschikbaar voor € 37.500. Het gebouw heeft een professioneel beheerde VvE.

Overdracht

Vraagprijs
€ 385.000 k.k.
Prijs per m²
€ 5.833
Aangeboden sinds
23-02-2026
Status
Beschikbaar
Beschikbaar
Per direct

Oppervlakte en inhoud

Woonoppervlakte
66 m²

Bouw

Type woning
Appartement
Soort woning
Galerijflat
Soort bouw
Bestaande bouw
Bouwjaar
1976

Indeling

Aantal kamers
3
Aantal slaapkamers
2
Aantal badkamers
1

Buitenruimte

Dakterras
Niet aanwezig

Energie

Energielabel
C
Meld een probleem met deze woning