- 110 m²
- 3 kamers
- 1993
Samenvatting
- Deze woning wordt sinds 26 januari 2026 aangeboden door RE/MAX City Makelaardij;
- De galerijflat heeft een woonoppervlakte van 110 m² en beschikt over 3 kamers, waarvan 2 slaapkamers;
- De woning is gebouwd In 1993 en ligt in de buurt Belgisch Park in Den Haag;
- De woning beschikt onder andere over de volgende voorzieningen: Bad, Lift, Douche, Toilet.
Beschrijving
Luxe en comfort op een bruisende locatie!
Ben je op zoek naar een comfortabel appartement dicht bij het strand én midden in het levendige Scheveningen? Zoek niet verder! Aan de Zwolsestraat 390 ligt dit uitstekend onderhouden appartement die alles biedt wat het hart begeert. Of het nu gaat om woongenot, gemak of een perfecte uitvalsbasis voor ontspanning aan de kust – hier kun je de balans vinden tussen rust en reuring.
Kortom een heerlijk appartement dat zeker een bezichtiging waard is!
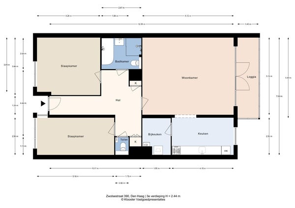
Entree woning, ruime hal v.v. toilet met fontein, meterkast en inbouwkast, vanuit de hal toegang tot de riante woonkamer. De woonkamer is licht en ruim opgezet en geeft toegang tot de loggia en keuken. De keuken is v.v. 4 pits gaskookplaat, oven, afzuigkap, vaatwasser en koel-/vriescombinatie. De loggia is zeer ruim en kan makkelijk betrokken worden bij de woonkamer. Hier vergroot u enorm de al zo ruime woonkamer. Aan de voorzijde treft u de eerste slaapkamer aan, welke ruim opgezet is. De badkamer is onlangs vernieuwd (2025) en v.v. ligbad, douche, wastafelmeubel, handdoekradiator en 2e toilet. De tweede slaapkamer is eveneens aan de voorzijde gelegen, heeft riante afmetingen en geeft vrij uitzicht de duinen in.
De woning beschikt over een eigen berging en parkeerplaats.
Kortom een heerlijk appartement op een fantastische locatie gelegen!
- Type woning: appartement met parkeerplaats
- Bouwjaar 1993
- Woonoppervlak: ca. 111 m2
- De woning beschikt over energielabel C
- De canon en beheerkosten zijn eeuwigdurend afgekocht
- De V.v.E is actief, bijdrage € 298,- per maand (€ 228,- voor de woning, € 41,- garage, € 29,- berging), MJOP aanwezig, het dak is volledig vernieuwd en het schilderwerk buiten is uitgevoerd
- De woning is v.v. dubbel glas met houten kozijnen (op één kiepraam na)
- Verwarming en warm water middels cv-combi ketel (deze is verouderd)
- De badkamer en het toilet zijn vernieuwd in 2025
- 2022 vloeren vernieuwd en keuken gewrapt
- afzuigkap vernieuwd 2024
- Het appartement beschikt over een parkeerplaats (verplichte afname a € 30.000,- los van de koopsom) en aparte berging
- Oplevering in overleg (wens verkoper begin mei 2026)
Overdracht
- Vraagprijs
- € 469.500 k.k.
- Aangeboden sinds
- 26-01-2026
- Status
- Beschikbaar
- Beschikbaar
- In overleg
- Bijzonderheden
- Seniorenwoning
- Onderhoudsstaat
- Goed
Oppervlakte en inhoud
- Woonoppervlakte
- 110 m²
- Inhoud
- 330 m³
VvE informatie
- Inschrijving KvK
- Ja
- Jaarlijkse vergadering
- Ja
- Periodieke bijdrage
- Ja (€ 298 per maand)
- Reservefonds aanwezig
- Ja
- Onderhoudsplan
- Ja
- Opstalverzekering
- Ja
Bouw
- Type woning
- Appartement
- Soort woning
- Galerijflat, Appartement
- Soort bouw
- Bestaande bouw
- Bouwjaar
- 1993
Indeling
- Aantal kamers
- 3
- Aantal slaapkamers
- 2
- Aantal badkamers
- 1
- Aantal woonlagen
- 1
- Verdieping
- 3
- Voorzieningen
-
- Bad
- Lift
- Douche
- Toilet
Buitenruimte
- Balkon
- Niet aanwezig
- Dakterras
- Niet aanwezig
Energie
- Isolatie
- Dubbele beglazing
- Verwarming
- CV-ketel
- Warm water
- CV-ketel
- Energielabel
- C
Bergruimte
- Schuur/Berging
- Aanwezig
Parkeergelegenheid
- Aanwezig
- Ja
- Soort parkeergelegenheid
- Garage
Garage
- Aanwezig
- Nee