Contact met de makelaar

Deze woning is gevonden buiten ons eigen netwerk. Met de knop hieronder kom je direct bij de aanbieder terecht.

Nieuw

Statenlaan 44

Bekijk kaart
2582 GN Den Haag (Statenkwartier)
€ 950.000 k.k.
  • 148 m²
  • 6 kamers
  • 1902

Samenvatting

  • Deze woning wordt sinds 15 oktober 2025 aangeboden door Estata Makelaars O.G.;
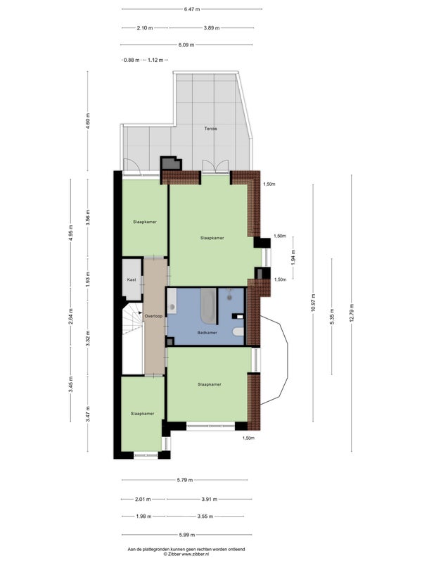
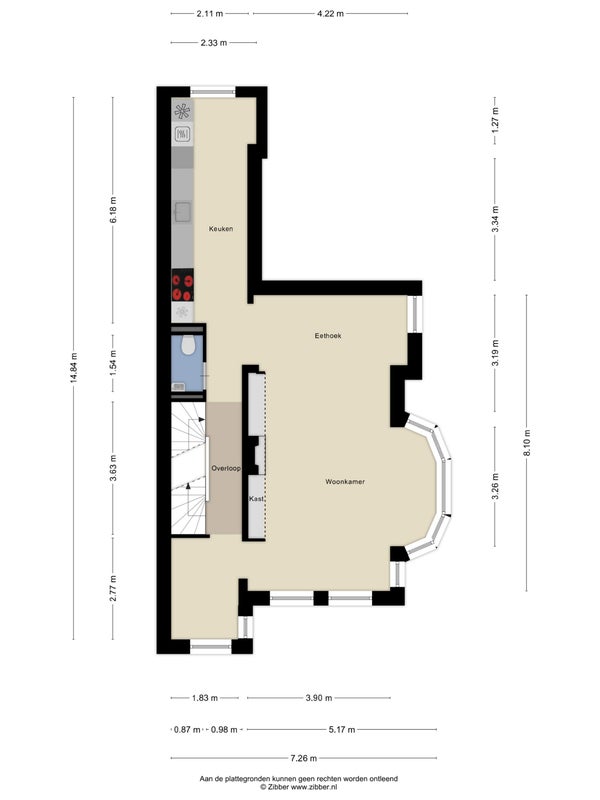
  • De bovenwoning heeft een woonoppervlakte van 148 m² en beschikt over 6 kamers, waarvan 4 slaapkamers;
  • De woning is gebouwd In 1902 en ligt in de buurt Statenkwartier in Den Haag;
  • De woning beschikt onder andere over de volgende voorzieningen: Bad, Kabel TV, Dakterras, Douche, Dakraam, Toilet, Wasruimte.

Beschrijving

Overdracht

Vraagprijs
€ 950.000 k.k.
Aangeboden sinds
15-10-2025
Status
Beschikbaar
Beschikbaar
In overleg
Bijzonderheden
Beschermd stads- of dorpsgezicht
Onderhoudsstaat
Goed

Oppervlakte en inhoud

Woonoppervlakte
148 m²
Inhoud
530 m³

VvE informatie

Inschrijving KvK
Ja
Jaarlijkse vergadering
Ja
Periodieke bijdrage
Ja (€ 270 per maand)
Reservefonds aanwezig
Ja
Onderhoudsplan
Ja
Opstalverzekering
Ja

Bouw

Type woning
Appartement
Soort woning
Bovenwoning, Appartement
Soort bouw
Bestaande bouw
Bouwjaar
1902
Ligging
In een woonwijk

Indeling

Aantal kamers
6
Aantal slaapkamers
4
Aantal badkamers
1
Aantal woonlagen
2
Voorzieningen
  • Bad
  • Kabel TV
  • Dakterras
  • Douche
  • Dakraam
  • Toilet
  • Wasruimte

Buitenruimte

Balkon
Niet aanwezig
Tuin
Aanwezig (19 m², gelegen op het zuiden)
Tuinbeschrijving
zonneterras
Dakterras
Aanwezig

Energie

Isolatie
Dubbele beglazing
Verwarming
CV-ketel, Gedeeltelijke vloerverwarming
Warm water
CV-ketel
Energielabel
A

Parkeergelegenheid

Aanwezig
Ja
Soort parkeergelegenheid
Openbaar

Garage

Aanwezig
Nee
Meld een probleem met deze woning
Contact met de makelaar Bel