- 110 m²
- 4 kamers
- 1935
Samenvatting
- Deze woning wordt sinds 29 oktober 2025 aangeboden door Rdam Makelaars;
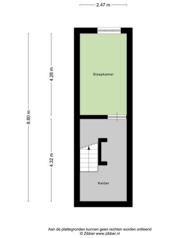
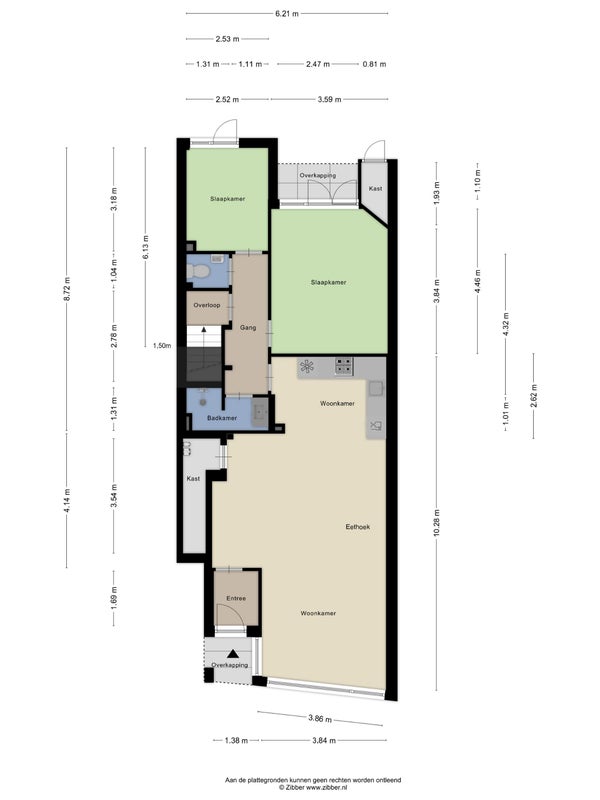
- De benedenwoning heeft een woonoppervlakte van 110 m² en beschikt over 4 kamers, waarvan 3 slaapkamers;
- De woning is gebouwd In 1935 en ligt in de buurt Vruchtenbuurt in Den Haag.
Beschrijving
Overdracht
- Vraagprijs
- € 439.000 k.k.
- Aangeboden sinds
- 29-10-2025
- Status
- Beschikbaar
- Beschikbaar
- In overleg
- Onderhoudsstaat
- Goed
Oppervlakte en inhoud
- Woonoppervlakte
- 110 m²
- Inhoud
- 366 m³
VvE informatie
- Inschrijving KvK
- Ja
- Jaarlijkse vergadering
- Ja
- Periodieke bijdrage
- Ja (€ 46 per maand)
- Reservefonds aanwezig
- Ja
- Onderhoudsplan
- Ja
- Opstalverzekering
- Ja
Bouw
- Type woning
- Appartement
- Soort woning
- Benedenwoning
- Soort bouw
- Bestaande bouw
- Bouwjaar
- 1935
Indeling
- Aantal kamers
- 4
- Aantal slaapkamers
- 3
- Aantal badkamers
- 1
- Aantal woonlagen
- 2
- Voorzieningen
- Douche
Buitenruimte
- Balkon
- Niet aanwezig
- Tuin
- Aanwezig (41 m²)
- Tuinbeschrijving
- achtertuin
- Dakterras
- Niet aanwezig
Energie
- Verwarming
- CV-ketel
- Warm water
- CV-ketel
- Energielabel
- C
Bergruimte
- Schuur/Berging
- Aanwezig
- Omschrijving
- Vrijstaand steen
Parkeergelegenheid
- Aanwezig
- Ja
- Soort parkeergelegenheid
- Openbaar
Garage
- Aanwezig
- Nee