- 91 m²
- 4 kamers
- 1908
Samenvatting
- Deze woning wordt sinds 3 oktober 2025 aangeboden door Estata Makelaars O.G.;
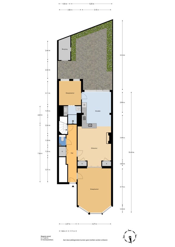
- De benedenwoning heeft een woonoppervlakte van 91 m² en beschikt over 4 kamers, waarvan 1 slaapkamer;
- De woning is gebouwd In 1908 en ligt in de buurt Statenkwartier in Den Haag.
Beschrijving
Overdracht
- Vraagprijs
- € 695.000 k.k.
- Aangeboden sinds
- 03-10-2025
- Status
- Beschikbaar
- Beschikbaar
- In overleg
- Bijzonderheden
- Beschermd stads- of dorpsgezicht
- Onderhoudsstaat
- Goed
Oppervlakte en inhoud
- Woonoppervlakte
- 91 m²
- Inhoud
- 462 m³
VvE informatie
- Inschrijving KvK
- Ja
- Jaarlijkse vergadering
- Nee
- Periodieke bijdrage
- Ja (€ 50 per maand)
- Reservefonds aanwezig
- Ja
- Onderhoudsplan
- Nee
- Opstalverzekering
- Ja
Bouw
- Type woning
- Appartement
- Soort woning
- Benedenwoning, Appartement
- Soort bouw
- Bestaande bouw
- Bouwjaar
- 1908
- Ligging
- In een woonwijk
Indeling
- Aantal kamers
- 4
- Aantal slaapkamers
- 1
- Aantal badkamers
- 1
- Aantal woonlagen
- 2
- Voorzieningen
-
- Douche
- Toilet
Buitenruimte
- Balkon
- Niet aanwezig
- Tuin
- Aanwezig (48 m², gelegen op het zuiden)
- Tuinbeschrijving
- achtertuin
- Dakterras
- Niet aanwezig
Energie
- Isolatie
- Dubbele beglazing
- Verwarming
- CV-ketel, Open haard
- Warm water
- CV-ketel
- Energielabel
- C
Bergruimte
- Schuur/Berging
- Aanwezig
- Omschrijving
- Vrijstaand steen
Parkeergelegenheid
- Aanwezig
- Ja
- Soort parkeergelegenheid
- Betaald
Garage
- Aanwezig
- Nee