Contact met de makelaar

Deze woning is gevonden buiten ons eigen netwerk. Met de knop hieronder kom je direct bij de aanbieder terecht.

Amsterdamse Veerkade 3 A

Bekijk kaart
2512 AG Den Haag (Zuidwal)
€ 275.000 k.k.
  • 35 m²
  • 2 kamers
  • 1900

Samenvatting

  • Deze woning wordt sinds 2 maanden aangeboden door 88 Makelaars;
  • De bovenwoning heeft een woonoppervlakte van 35 m² en beschikt over 2 kamers, waarvan 1 slaapkamer;
  • De woning is gebouwd In 1900 en ligt in de buurt Zuidwal in Den Haag.

Beschrijving

Luxe stadsleven in hartje Den Haag!

Energielabel A | Direct beschikbaar | Hoogwaardige afwerking | Eigen dakterras

Wonen in stijl, midden in het bruisende centrum van Den Haag — dát kan in dit prachtig gerenoveerde appartement van ca. 35 m² met een zonnig dakterras. Hier geniet je van het beste wat de stad te bieden heeft: van de culinaire hotspots aan de Rue Culinaire tot het Nederlands Danstheater, Filmhuis Den Haag en talloze gezellige cafés — alles ligt letterlijk om de hoek.

Met Den Haag Centraal en Holland Spoor op loopafstand met uitstekende verbindingen naar de uitvalswegen, woon je hier op een toplocatie waar comfort en gemak samenkomen.

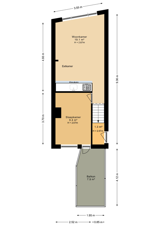
Indeling
Via de gezamenlijke entree en trap bereik je de eerste etage.
De lichte woonkamer met grote ramen straalt ruimte en elegantie uit. De moderne open keuken is een echte eyecatcher, voorzien van een hardstenen aanrechtblad en alle hoogwaardige inbouwapparatuur die je nodig hebt.

De luxe badkamer is stijlvol afgewerkt met een ruime inloopdouche, wastafelmeubel en toilet.
Aan de achterzijde bevindt zich de knusse slaapkamer met openslaande deuren naar een charmant balkon — jouw eigen rustige plekje midden in de stad.

Bijzonderheden

  • Bouwjaar: 1900
  • Woonoppervlakte: ca. 35 m²
  • Volledig gerenoveerd en direct instapklaar
  • Energielabel A
  • VvE: € 70,- maandelijkse bijdrage
  • Eeuwigdurend afgekochte erfpacht
  • Perfecte ligging in het centrum van Den Haag
  • Huygenspark in de nabijheid

Oplevering: per direct mogelijk

INTERESSE IN DIT HUIS? MAAK DAN SNEL EEN AFSPRAAK!
Bij ons staat persoonlijke aandacht voorop. Wij plannen graag samen een moment in voor de bezichtiging van dit huis.

Nog vragen? Wij staan voor u klaar om deze te beantwoorden! Zien wij u binnenkort?

Het team van 88 Makelaars

Reageer op tijd op nieuw woningaanbod

Meer dan de helft van de reacties komt binnen 48 uur. Ontvang direct notificaties bij nieuw aanbod en reageer sneller met Pararius+.

Probeer Pararius+ 14 dagen € 0,01

Overdracht

Vraagprijs
€ 275.000 k.k.
Aangeboden sinds
04-11-2025
Status
Beschikbaar
Beschikbaar
Per direct
Onderhoudsstaat
Zeer goed

Oppervlakte en inhoud

Woonoppervlakte
35 m²
Inhoud
150 m³

VvE informatie

Inschrijving KvK
Ja
Jaarlijkse vergadering
Ja
Periodieke bijdrage
Ja (€ 70 per maand)
Onderhoudsplan
Ja
Opstalverzekering
Ja

Bouw

Type woning
Appartement
Soort woning
Bovenwoning, Appartement
Soort bouw
Bestaande bouw
Bouwjaar
1900

Indeling

Aantal kamers
2
Aantal slaapkamers
1
Aantal badkamers
1
Aantal woonlagen
1
Voorzieningen
Dakterras

Buitenruimte

Balkon
Niet aanwezig
Dakterras
Aanwezig

Energie

Isolatie
Spouwmuurisolatie
Verwarming
CV-ketel, Warmtepomp
Warm water
CV-ketel
Cv-ketel
Intergas (Gas, Eigendom)
Energielabel
A

Parkeergelegenheid

Aanwezig
Ja
Soort parkeergelegenheid
Openbaar
Meld een probleem met deze woning