Contact met de makelaar

Deze woning is gevonden buiten ons eigen netwerk. Met de knop hieronder kom je direct bij de aanbieder terecht.

Van Zaeckstraat 27

Bekijk kaart
2596 TP Den Haag (Arendsdorp)
€ 625.000 k.k.
  • 123 m²
  • 4 kamers
  • 1929

Samenvatting

  • Deze woning wordt sinds 12 oktober 2025 aangeboden door Estata Makelaars O.G.;
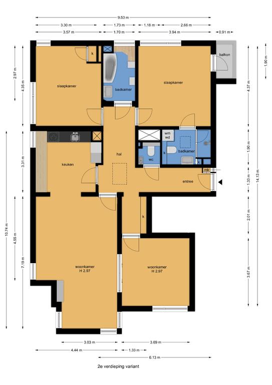
  • De bovenwoning heeft een woonoppervlakte van 123 m² en beschikt over 4 kamers, waarvan 2 slaapkamers;
  • De woning is gebouwd In 1929 en ligt in de buurt Arendsdorp in Den Haag;
  • De woning beschikt onder andere over de volgende voorzieningen: Bad, Kabel TV, Lift, Mechanische ventilatie, Douche, Toilet.

Beschrijving

Overdracht

Vraagprijs
€ 625.000 k.k.
Aangeboden sinds
12-10-2025
Status
Beschikbaar
Beschikbaar
In overleg
Bijzonderheden
Beschermd stads- of dorpsgezicht
Onderhoudsstaat
Goed

Oppervlakte en inhoud

Woonoppervlakte
123 m²
Inhoud
445 m³

VvE informatie

Inschrijving KvK
Ja
Jaarlijkse vergadering
Ja
Periodieke bijdrage
Ja (€ 562 per maand)
Reservefonds aanwezig
Ja
Onderhoudsplan
Ja
Opstalverzekering
Ja

Bouw

Type woning
Appartement
Soort woning
Bovenwoning, Appartement
Soort bouw
Bestaande bouw
Bouwjaar
1929
Ligging
  • Aan een rustige weg
  • Aan bosrand
  • Aan het water
  • In een woonwijk
  • Vrij uitzicht

Indeling

Aantal kamers
4
Aantal slaapkamers
2
Aantal badkamers
2
Aantal woonlagen
1
Voorzieningen
  • Bad
  • Kabel TV
  • Lift
  • Mechanische ventilatie
  • Douche
  • Toilet

Buitenruimte

Balkon
Aanwezig
Tuin
Niet aanwezig
Dakterras
Niet aanwezig

Energie

Verwarming
Blokverwarming
Warm water
Centrale verwarming
Energielabel
G

Bergruimte

Schuur/Berging
Aanwezig
Omschrijving
Box

Parkeergelegenheid

Aanwezig
Ja
Soort parkeergelegenheid
Openbaar

Garage

Aanwezig
Nee
Meld een probleem met deze woning
Contact met de makelaar Bel