Contact met de makelaar

Deze woning is gevonden buiten ons eigen netwerk. Met de knop hieronder kom je direct bij de aanbieder terecht.

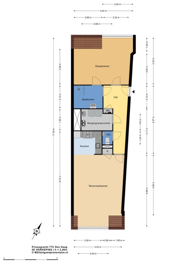
Prinsegracht

Bekijk kaart
2512 EX Den Haag (Kortenbos)
€ 380.000 k.k.
  • 80 m²
  • 2 kamers
  • 2004

Samenvatting

  • Deze woning wordt sinds 30 oktober 2025 aangeboden door De Regentes, NVM Makelaardij in onroerende zaken;
  • De galerijflat heeft een woonoppervlakte van 80 m² en beschikt over 2 kamers, waarvan 1 slaapkamer;
  • De woning is gebouwd In 2004 en ligt in de buurt Kortenbos in Den Haag.

Beschrijving

Meer woninginformatie bekijken?

Log in of registreer gratis.

Overdracht

Vraagprijs
€ 380.000 k.k.
Aangeboden sinds
30-10-2025
Status
Beschikbaar
Beschikbaar
In overleg

Oppervlakte en inhoud

Woonoppervlakte
80 m²

Bouw

Type woning
Appartement
Soort woning
Galerijflat
Soort bouw
Bestaande bouw
Bouwjaar
2004

Indeling

Aantal kamers
2
Aantal slaapkamers
1

Buitenruimte

Dakterras
Niet aanwezig

Energie

Energielabel
A
Meld een probleem met deze woning