- 87 m²
- 3 kamers
- 1929
Samenvatting
- Deze woning wordt sinds 23 januari 2026 aangeboden door DOEN NVM Makelaars - Voorburg;
- De galerijflat heeft een woonoppervlakte van 87 m² en beschikt over 3 kamers, waarvan 2 slaapkamers;
- De woning is gebouwd In 1929 en ligt in de buurt Duindorp in Den Haag.
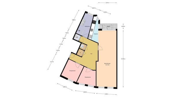
Beschrijving
Dit sfeervolle en lichte 3-kamer appartement van ca. 87 m² ligt op de 1e etage aan de Duivenlandsestraat en Pluvierstraat, dichtbij het strand en de duinen. De rustige, kindvriendelijke wijk Duindorp biedt diverse voorzieningen zoals supermarkten en scholen op loopafstand. Bij binnenkomst via het open portiek kom je in de hal, met toegang tot een ruime woon-eetkamer, twee slaapkamers en een moderne keuken. Het balkon is gericht op het noordoosten en de badkamer is uitgerust met vloerverwarming en een inloopdouche. Het appartement is goed onderhouden en maakt deel uit van een actieve VvE. Met de vele ramen is er veel lichtinval. De ligging, nabij het strand en natuur, maakt dit appartement ideaal voor starters en jonge gezinnen.
Overdracht
- Vraagprijs
- € 350.000 k.k.
- Aangeboden sinds
- 23-01-2026
- Status
- Beschikbaar
- Beschikbaar
- Per direct
Oppervlakte en inhoud
- Woonoppervlakte
- 87 m²
Bouw
- Type woning
- Appartement
- Soort woning
- Galerijflat
- Soort bouw
- Bestaande bouw
- Bouwjaar
- 1929
Indeling
- Aantal kamers
- 3
- Aantal slaapkamers
- 2
- Aantal badkamers
- 1
Buitenruimte
- Dakterras
- Niet aanwezig
Energie
- Energielabel
- D