Contact met de makelaar

Deze woning is gevonden buiten ons eigen netwerk. Met de knop hieronder kom je direct bij de aanbieder terecht.

Verkocht onder voorbehoud

Zeekant 103 Y

Bekijk kaart
2586 JJ Den Haag (Belgisch Park)
€ 460.000 k.k.
  • 62 m²
  • 2 kamers
  • 1985

Samenvatting

  • Deze woning wordt sinds 14 januari 2026 aangeboden door Expat & Real Estate B.V.;
  • De galerijflat heeft een woonoppervlakte van 62 m² en beschikt over 2 kamers, waarvan 1 slaapkamer;
  • De woning is gebouwd In 1985 en ligt in de buurt Belgisch Park in Den Haag;
  • De woning beschikt onder andere over de volgende voorzieningen: Kabel TV, Glasvezelaansluiting, Mechanische ventilatie, Douche, Bergruimte, Toilet.

Beschrijving

IK WIL DE WONING BEZICHTIGEN
Dat is zeker mogelijk! Om deze woning te bezichtigen, adviseren we je te reageren via e-mail, het aanvraagformulier op onze website, of via digitale platforms zoals ******. Na je reactie ontvang je een link om zelf een tijdslot te kiezen en je bezichtiging in te plannen. Heb je toch liever direct contact? Bel ons dan gerust, we zijn bereikbaar.

WELKOM IN DEN HAAG
Wonen in een luxe gerenoveerd appartement met uitzicht op de zee én het strand! In dit recent (2025) luxe gerenoveerde appartement, gelegen op de 5e verdieping, geniet u dagelijks van het prachtige panorama over de Noordzee en het Scheveningse strand. De duinen zijn binnen een paar minuten lopen bereikbaar. Het appartement beschikt over een heerlijk zonnig balkon, een privéparkeerplaats in de onderliggende garage, een aparte berging en een gunstig energielabel A. Een perfecte combinatie van comfort, luxe en uitzicht, wonen aan zee zoals het bedoeld is!

WIJK – Belgisch Park
Gelegen in het Belgisch Park tegen Scheveningen aan. De wijk staat bekend om zijn rustige, groene karakter en de mooie, statige villa's uit de late 19e en vroege 20e eeuw. Voor natuurliefhebbers zijn er in de buurt volop mogelijkheden: wandel of fiets door het Westbroekpark of geniet van een moment van ontspanning in het groen. Met het strand letterlijk voor de deur is een heerlijke wandeling of een ontspannende dag aan zee altijd binnen handbereik. Daarnaast biedt de boulevard van Scheveningen een scala aan voorzieningen: gezellige winkels, diverse restaurants, een bioscoop en zelfs een casino maken dit een levendige en complete locatie.

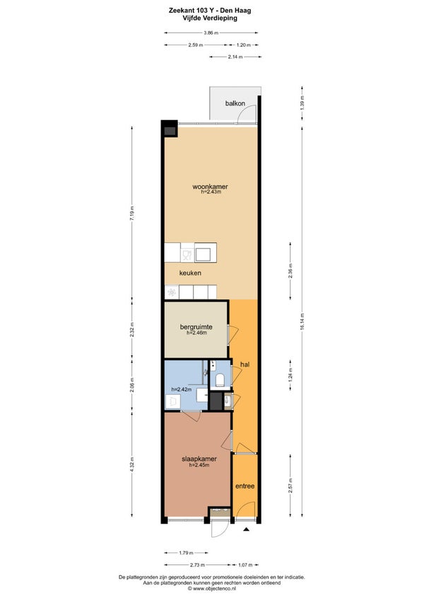
INDELING
Via het entree aan de Zeekantzijde met brievenbussen en bellentableau bereikt u met lift of trap de vijfde verdieping. Aan de voorzijde van het complex bevindt zich de toegang voor de auto. Vanaf het parkeerdek kunt u direct via de lift naar boven. Via een galerij is er toegang tot het appartement.

5e verdieping:
Fraai entree met mooie tochtdeur, gang, prachtige woonkamer met schitterend uitzicht over het strand en de zee, de moderne open keuken is voorzien van diverse moderne voorzieningen, waaronder een inductie kookplaat, vaatwasser, koel-vrieskast en combi oven/magnetron. Vanuit de woonkamer is er toegang tot het heerlijke, zonnige balkon met glazen balkonafscheiding. Het balkon is gelegen op het westen, ideaal om te ontspannen en te genieten van de adembenemende zonsondergang.

Tussenruimte met een kast over de volle breedte, welke zou kunnen worden gebruikt als logeerruimte. Aparte Easy clean toilet met fonteintje. Goede ruime slaapkamer met aansluitend de badkamer. Deze is voorzien van een ruime inloopdouche met o.a. een regendouche, wastafel met meubel en wasmachine. De plafondhoge binnendeuren hebben verborgen scharnieren.

ISOLATIE EN VERWARMING
Voorzien van Energielabel A. Verwarming middels infrarood vloerverwarming en warm water middels een elektrische boiler(100L) bediend via app . Gevelisolatie Isoned Therm Classic platen. Dakisolatie. Beglazing HR+++. Bouwjaar woning is 1985.

BERGING
Verder beschikt het appartement over een berging op de begane grond.

PARKEREN
1 vaste parkeerplaats op het parkeerdek.

HIGHLIGHTS

  • Woonoppervlak 61,30 m2 (conform NEN2580)
  • Inhoud 192,10 m3 (conform NEN2580)
  • Erfpacht is eeuwigdurend afgekocht
  • Energielabel A
  • Open keuken voorzien van diverse inbouwapparatuur
  • 1 slaapkamer
  • 1 ruime berging in het appartement en 1 op de begane grond
  • 1 badkamer
  • 1 toilet (easy clean)
  • Voorzien van een PVC visgraat vloer
  • Gordijnen, verlichting en het meubilair blijft achter
  • Balkon aan de voorzijde
  • Zeer goede locatie
  • VVE is opgericht met een maandelijkse bijdrage is € 295,93
  • Er is een meerjarenonderhoudsplan aanwezig
  • Niet bewoners clausule van toepassing
  • Asbest en lood clausule van toepassing
  • Het wordt verkocht “As is where is”, inclusief inventaris en meubilair
  • Vraagprijs € 460.000,00 kosten koper
  • De oplevering kan snel plaatsvinden
  • Alle stukken betreft deze woning zijn bij ons kantoor op te vragen

Disclaimer:
De informatie in deze presentatie is met zorg samengesteld, maar wij geven geen garanties met betrekking tot de volledigheid, nauwkeurigheid of actualiteit van de verstrekte informatie aangezien details kunnen veranderen. Wij raden u aan om de meest recente informatie altijd rechtstreeks bij de betrokken instanties te verifiëren. Wij waarderen uw begrip en staan klaar om eventuele vragen te beantwoorden.

Overdracht

Vraagprijs
€ 460.000 k.k.
Aangeboden sinds
14-01-2026
Status
Verkocht onder voorbehoud
Beschikbaar
In overleg
Onderhoudsstaat
Goed

Oppervlakte en inhoud

Woonoppervlakte
62 m²
Inhoud
192 m³

VvE informatie

Inschrijving KvK
Ja
Jaarlijkse vergadering
Ja
Periodieke bijdrage
Ja (€ 296 per maand)
Reservefonds aanwezig
Ja
Onderhoudsplan
Nee
Opstalverzekering
Ja

Bouw

Type woning
Appartement
Soort woning
Galerijflat, Appartement
Soort bouw
Bestaande bouw
Bouwjaar
1985
Ligging
  • Nabij de zee
  • Vrij uitzicht

Indeling

Aantal kamers
2
Aantal slaapkamers
1
Aantal badkamers
1
Aantal woonlagen
1
Verdieping
5
Voorzieningen
  • Kabel TV
  • Glasvezelaansluiting
  • Mechanische ventilatie
  • Douche
  • Bergruimte
  • Toilet

Buitenruimte

Balkon
Aanwezig
Tuin
Niet aanwezig
Dakterras
Niet aanwezig

Energie

Isolatie
Dubbele beglazing, Dakisolatie, Muurisolatie
Verwarming
Volledige vloerverwarming
Warm water
Elektrische boiler
Energielabel
A

Bergruimte

Schuur/Berging
Aanwezig
Omschrijving
Box

Parkeergelegenheid

Aanwezig
Ja
Soort parkeergelegenheid
Openbaar

Garage

Aanwezig
Nee
Meld een probleem met deze woning