- 62 m²
- 3 kamers
- 1886
Samenvatting
- Deze woning wordt sinds 4 oktober 2025 aangeboden door Estata Makelaars O.G.;
- De bovenwoning heeft een woonoppervlakte van 62 m² en beschikt over 3 kamers, waarvan 1 slaapkamer;
- De woning is gebouwd In 1886 en ligt in de buurt Bezuidenhout-Midden in Den Haag;
- De woning beschikt onder andere over de volgende voorzieningen: Dakterras, Douche, Toilet.
Beschrijving
Overdracht
- Vraagprijs
- € 399.000 k.k.
- Aangeboden sinds
- 04-10-2025
- Status
- Beschikbaar
- Beschikbaar
- In overleg
- Onderhoudsstaat
- Goed
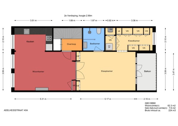
Oppervlakte en inhoud
- Woonoppervlakte
- 62 m²
- Inhoud
- 224 m³
VvE informatie
- Inschrijving KvK
- Ja
- Jaarlijkse vergadering
- Ja
- Periodieke bijdrage
- Ja (€ 62 per maand)
- Reservefonds aanwezig
- Ja
- Onderhoudsplan
- Nee
- Opstalverzekering
- Ja
Bouw
- Type woning
- Appartement
- Soort woning
- Bovenwoning, Appartement
- Soort bouw
- Bestaande bouw
- Bouwjaar
- 1886
- Ligging
-
- Aan een rustige weg
- In een woonwijk
- Vrij uitzicht
Indeling
- Aantal kamers
- 3
- Aantal slaapkamers
- 1
- Aantal badkamers
- 1
- Aantal woonlagen
- 1
- Voorzieningen
-
- Dakterras
- Douche
- Toilet
Buitenruimte
- Balkon
- Niet aanwezig
- Tuin
- Niet aanwezig
- Dakterras
- Aanwezig
Energie
- Isolatie
- Dubbele beglazing
- Verwarming
- CV-ketel
- Warm water
- CV-ketel
- Cv-ketel
- Hoogrendement (Gas, Eigendom)
- Energielabel
- C
Parkeergelegenheid
- Aanwezig
- Ja
- Soort parkeergelegenheid
- Openbaar
Garage
- Aanwezig
- Nee