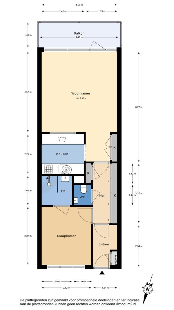
- 52 m²
- 2 kamers
- 1969
Samenvatting
- Deze woning wordt sinds 25 oktober 2025 aangeboden door Duynhage Makelaardij;
- De portiekflat heeft een woonoppervlakte van 52 m² en beschikt over 2 kamers, waarvan 1 slaapkamer;
- De woning is gebouwd In 1969 en ligt in de buurt Waldeck-Noord in Den Haag;
- De woning beschikt onder andere over de volgende voorzieningen: Lift, Douche, Toilet.
Beschrijving
Meer woninginformatie bekijken?
Log in of registreer gratis.
Overdracht
- Vraagprijs
- € 239.000 k.k.
- Aangeboden sinds
- 25-10-2025
- Status
- Beschikbaar
- Beschikbaar
- In overleg
- Onderhoudsstaat
- Goed
Oppervlakte en inhoud
- Woonoppervlakte
- 52 m²
- Inhoud
- 192 m³
VvE informatie
- Inschrijving KvK
- Ja
- Jaarlijkse vergadering
- Ja
- Periodieke bijdrage
- Ja (€ 178 per maand)
- Reservefonds aanwezig
- Ja
- Onderhoudsplan
- Ja
- Opstalverzekering
- Ja
Bouw
- Type woning
- Appartement
- Soort woning
- Portiekflat, Appartement
- Soort bouw
- Bestaande bouw
- Bouwjaar
- 1969
- Ligging
-
- Aan een rustige weg
- In een woonwijk
Indeling
- Aantal kamers
- 2
- Aantal slaapkamers
- 1
- Aantal badkamers
- 1
- Aantal woonlagen
- 1
- Voorzieningen
-
- Lift
- Douche
- Toilet
Buitenruimte
- Balkon
- Aanwezig
- Tuin
- Niet aanwezig
- Dakterras
- Niet aanwezig
Energie
- Isolatie
- Gedeeltelijk dubbele beglazing, Voorzetramen
- Verwarming
- Blokverwarming
- Warm water
- Elektrische boiler
- Energielabel
- E
Bergruimte
- Schuur/Berging
- Aanwezig
- Omschrijving
- Box
Parkeergelegenheid
- Aanwezig
- Ja
- Soort parkeergelegenheid
- Openbaar
Garage
- Aanwezig
- Nee