Contact met de makelaar

Deze woning is gevonden buiten ons eigen netwerk. Met de knop hieronder kom je direct bij de aanbieder terecht.

Nieuw

Dillenburg 230

Bekijk kaart
6865 HR Doorwerth (Cardanuslaan)
€ 250.000 k.k.
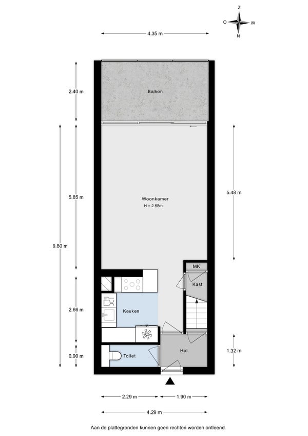
  • 83 m²
  • 4 kamers
  • 1974

Samenvatting

  • Deze woning wordt sinds 3 oktober 2025 aangeboden door KOCH Real Estate;
  • De galerijflat heeft een woonoppervlakte van 83 m² en beschikt over 4 kamers, waarvan 3 slaapkamers;
  • De woning is gebouwd In 1974 en ligt in de buurt Cardanuslaan in Doorwerth;
  • De woning beschikt onder andere over de volgende voorzieningen: Kabel TV, Rolluiken, Douche, Toilet.

Beschrijving

Overdracht

Vraagprijs
€ 250.000 k.k.
Aangeboden sinds
03-10-2025
Status
Beschikbaar
Beschikbaar
Per direct
Onderhoudsstaat
Goed

Oppervlakte en inhoud

Woonoppervlakte
83 m²
Inhoud
273 m³

VvE informatie

Inschrijving KvK
Ja
Jaarlijkse vergadering
Ja
Periodieke bijdrage
Ja (€ 330 per maand)
Reservefonds aanwezig
Ja
Onderhoudsplan
Ja
Opstalverzekering
Ja

Bouw

Type woning
Appartement
Soort woning
Galerijflat, Dubbel bovenhuis
Soort bouw
Bestaande bouw
Bouwjaar
1974
Ligging
  • Aan een rustige weg
  • Aan bosrand
  • In een woonwijk
  • In bosrijke omgeving
  • Beschut gelegen
  • Vrij uitzicht

Indeling

Aantal kamers
4
Aantal slaapkamers
3
Aantal badkamers
1
Aantal woonlagen
2
Voorzieningen
  • Kabel TV
  • Rolluiken
  • Douche
  • Toilet

Buitenruimte

Balkon
Niet aanwezig
Tuin
Aanwezig
Tuinbeschrijving
zonneterras
Dakterras
Niet aanwezig

Energie

Isolatie
Dubbele beglazing
Verwarming
Blokverwarming
Warm water
Centrale verwarming
Energielabel
E

Bergruimte

Schuur/Berging
Aanwezig
Omschrijving
Inpandig

Parkeergelegenheid

Aanwezig
Ja
Soort parkeergelegenheid
Openbaar

Garage

Aanwezig
Nee
Meld een probleem met deze woning
Contact met de makelaar Bel