Contact met de makelaar

Deze woning is gevonden buiten ons eigen netwerk. Met de knop hieronder kom je direct bij de aanbieder terecht.

Paludanushof

Bekijk kaart
1601 MN Enkhuizen (Centrum Zuid-Oost)
€ 350.000 k.k.
  • 78 m²
  • 3 kamers
  • 1994

Samenvatting

  • Deze woning wordt sinds 6 januari 2026 aangeboden door KUIN MAKELAARDIJ, actief en gedreven;
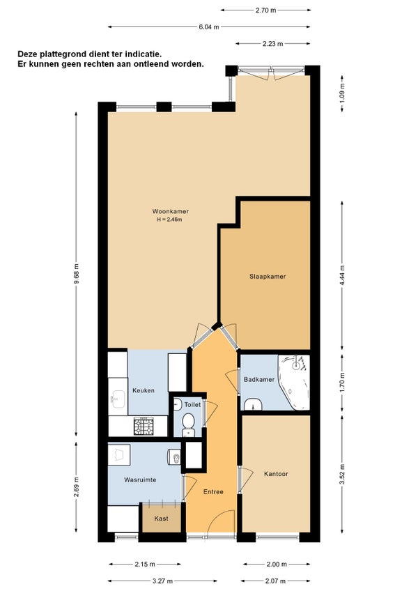
  • De galerijflat heeft een woonoppervlakte van 78 m² en beschikt over 3 kamers, waarvan 2 slaapkamers;
  • De woning is gebouwd In 1994 en ligt in de buurt Centrum Zuid-Oost in Enkhuizen.

Beschrijving

In de sfeervolle binnenstad van Enkhuizen ligt dit prachtige, instapklare appartement met uitzicht op de karakteristieke Zuiderkerk en in bepaalde seizoenen op het IJsselmeer. Het goed onderhouden appartement verkeert in uitstekende staat, zodat je direct kunt intrekken. De fijne lichtinval, prettige indeling en moderne afwerking zorgen voor een aangename woonsfeer. Winkels, supermarkten, horecagelegenheden en het NS-station zijn allemaal op loopafstand te vinden. Met een optionele garagebox, ideaal voor extra gemak of bergruimte, biedt dit appartement de perfecte combinatie van comfortabel wonen en het stadse leven. Met een ruime leefruimte, praktische keuken, ouderslaapkamer met nis, tweede kamer en betegelde badkamer is dit een unieke plek om te wonen.

Overdracht

Vraagprijs
€ 350.000 k.k.
Aangeboden sinds
06-01-2026
Status
Beschikbaar
Beschikbaar
In overleg

Oppervlakte en inhoud

Woonoppervlakte
78 m²

Bouw

Type woning
Appartement
Soort woning
Galerijflat
Soort bouw
Bestaande bouw
Bouwjaar
1994

Indeling

Aantal kamers
3
Aantal slaapkamers
2
Aantal badkamers
1

Buitenruimte

Dakterras
Niet aanwezig

Energie

Energielabel
A
Meld een probleem met deze woning