Contact met de makelaar

Deze woning is gevonden buiten ons eigen netwerk. Met de knop hieronder kom je direct bij de aanbieder terecht.

Nieuw

Rijnstraat 82 B

Bekijk kaart
2025 RT Haarlem (Rivierenbuurt)
€ 325.000 k.k.
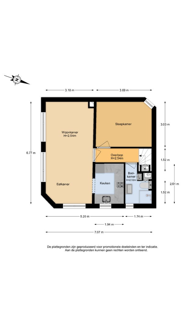
  • 51 m²
  • 2 kamers
  • 1930

Samenvatting

  • Deze woning wordt sinds 16 oktober 2025 aangeboden door Centraal Makelaardij;
  • De bovenwoning heeft een woonoppervlakte van 51 m² en beschikt over 2 kamers, waarvan 1 slaapkamer;
  • De woning is gebouwd In 1930 en ligt in de buurt Rivierenbuurt in Haarlem.

Beschrijving

Overdracht

Vraagprijs
€ 325.000 k.k.
Aangeboden sinds
16-10-2025
Status
Beschikbaar
Beschikbaar
In overleg
Onderhoudsstaat
Goed

Oppervlakte en inhoud

Woonoppervlakte
51 m²
Inhoud
176 m³

Bouw

Type woning
Appartement
Soort woning
Bovenwoning
Soort bouw
Bestaande bouw
Bouwjaar
1930

Indeling

Aantal kamers
2
Aantal slaapkamers
1
Aantal badkamers
1
Aantal woonlagen
1
Voorzieningen
  • Douche
  • Toilet

Buitenruimte

Balkon
Niet aanwezig
Tuin
Niet aanwezig
Dakterras
Niet aanwezig

Energie

Verwarming
CV-ketel
Warm water
CV-ketel
Energielabel
A

Parkeergelegenheid

Aanwezig
Ja
Soort parkeergelegenheid
Openbaar

Garage

Aanwezig
Nee
Meld een probleem met deze woning
Contact met de makelaar Bel