Contact met de makelaar

Deze woning is gevonden buiten ons eigen netwerk. Met de knop hieronder kom je direct bij de aanbieder terecht.

Nieuw

Schoterweg 168 ZW

Bekijk kaart
2021 HW Haarlem (Generaalsbuurt)
€ 475.000 k.k.
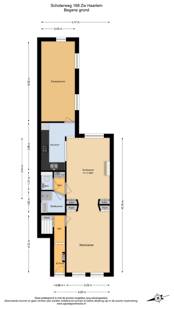
  • 69 m²
  • 3 kamers
  • 1906

Samenvatting

  • Deze woning wordt sinds 1 oktober 2025 aangeboden door Wbos Makelaars;
  • De benedenwoning heeft een woonoppervlakte van 69 m² en beschikt over 3 kamers, waarvan 1 slaapkamer;
  • De woning is gebouwd In 1906 en ligt in de buurt Generaalsbuurt in Haarlem;
  • De woning beschikt onder andere over de volgende voorzieningen: Kabel TV, Glasvezelaansluiting, Mechanische ventilatie, Toilet, Wasruimte.

Beschrijving

Overdracht

Vraagprijs
€ 475.000 k.k.
Aangeboden sinds
01-10-2025
Status
Beschikbaar
Beschikbaar
In overleg
Bijzonderheden
Seniorenwoning
Onderhoudsstaat
Goed

Oppervlakte en inhoud

Woonoppervlakte
69 m²
Inhoud
275 m³

VvE informatie

Inschrijving KvK
Ja
Jaarlijkse vergadering
Ja
Periodieke bijdrage
Ja (€ 100 per maand)
Reservefonds aanwezig
Ja
Onderhoudsplan
Ja
Opstalverzekering
Ja

Bouw

Type woning
Appartement
Soort woning
Benedenwoning, Appartement
Soort bouw
Bestaande bouw
Bouwjaar
1906
Ligging
  • In het centrum
  • In bosrijke omgeving

Indeling

Aantal kamers
3
Aantal slaapkamers
1
Aantal badkamers
1
Aantal woonlagen
1
Voorzieningen
  • Kabel TV
  • Glasvezelaansluiting
  • Mechanische ventilatie
  • Toilet
  • Wasruimte

Buitenruimte

Balkon
Niet aanwezig
Tuin
Aanwezig (85 m², gelegen op het zuidoosten)
Tuinbeschrijving
achtertuin, voortuin
Dakterras
Niet aanwezig

Energie

Isolatie
Vloerisolatie, Gedeeltelijk dubbele beglazing, Dakisolatie, Voorzetramen
Verwarming
CV-ketel
Warm water
CV-ketel
Cv-ketel
Nefit (Gas, uit 2018, Eigendom)
Energielabel
D

Bergruimte

Schuur/Berging
Aanwezig
Omschrijving
Vrijstaand hout

Parkeergelegenheid

Aanwezig
Ja
Soort parkeergelegenheid
Betaald
Omschrijving
Voldoende parkeergelegenheid in de straat

Garage

Aanwezig
Nee
Meld een probleem met deze woning
Contact met de makelaar Bel