Contact met de makelaar

Deze woning is gevonden buiten ons eigen netwerk. Met de knop hieronder kom je direct bij de aanbieder terecht.

Nieuw

Nieuwe Groenmarkt 2 A

Bekijk kaart
2011 TW Haarlem (Binnenstad)
€ 365.000 k.k.
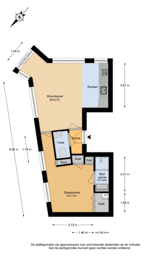
  • 41 m²
  • 2 kamers
  • 1880

Samenvatting

  • Deze woning wordt sinds 14 oktober 2025 aangeboden door Centraal Makelaardij;
  • De bovenwoning heeft een woonoppervlakte van 41 m² en beschikt over 2 kamers, waarvan 1 slaapkamer;
  • De woning is gebouwd In 1880 en ligt in de buurt Binnenstad in Haarlem;
  • De woning beschikt onder andere over de volgende voorzieningen: Kabel TV, Glasvezelaansluiting, Frans balkon, Mechanische ventilatie, Douche, Toilet.

Beschrijving

Overdracht

Vraagprijs
€ 365.000 k.k.
Aangeboden sinds
14-10-2025
Status
Beschikbaar
Beschikbaar
In overleg
Onderhoudsstaat
Goed

Oppervlakte en inhoud

Woonoppervlakte
41 m²
Inhoud
173 m³

VvE informatie

Inschrijving KvK
Ja
Jaarlijkse vergadering
Ja
Periodieke bijdrage
Ja (€ 100 per maand)
Reservefonds aanwezig
Ja
Onderhoudsplan
Ja
Opstalverzekering
Ja

Bouw

Type woning
Appartement
Soort woning
Bovenwoning, Appartement
Soort bouw
Bestaande bouw
Bouwjaar
1880
Ligging
In het centrum

Indeling

Aantal kamers
2
Aantal slaapkamers
1
Aantal badkamers
1
Aantal woonlagen
1
Voorzieningen
  • Kabel TV
  • Glasvezelaansluiting
  • Frans balkon
  • Mechanische ventilatie
  • Douche
  • Toilet

Buitenruimte

Balkon
Niet aanwezig
Tuin
Niet aanwezig
Dakterras
Niet aanwezig

Energie

Verwarming
CV-ketel
Warm water
CV-ketel
Cv-ketel
Intergas (Gas, Eigendom)
Energielabel
F

Parkeergelegenheid

Aanwezig
Ja
Soort parkeergelegenheid
Betaald

Garage

Aanwezig
Nee
Meld een probleem met deze woning
Contact met de makelaar Bel